Перейти к контенту
Подбор и сравнение проектов домов от застройщиков Московской области
Подборщик домов
Калькулятор сметы
Калькулятор площади
Форум
Блог
Главная
›
Каталог проектов
›
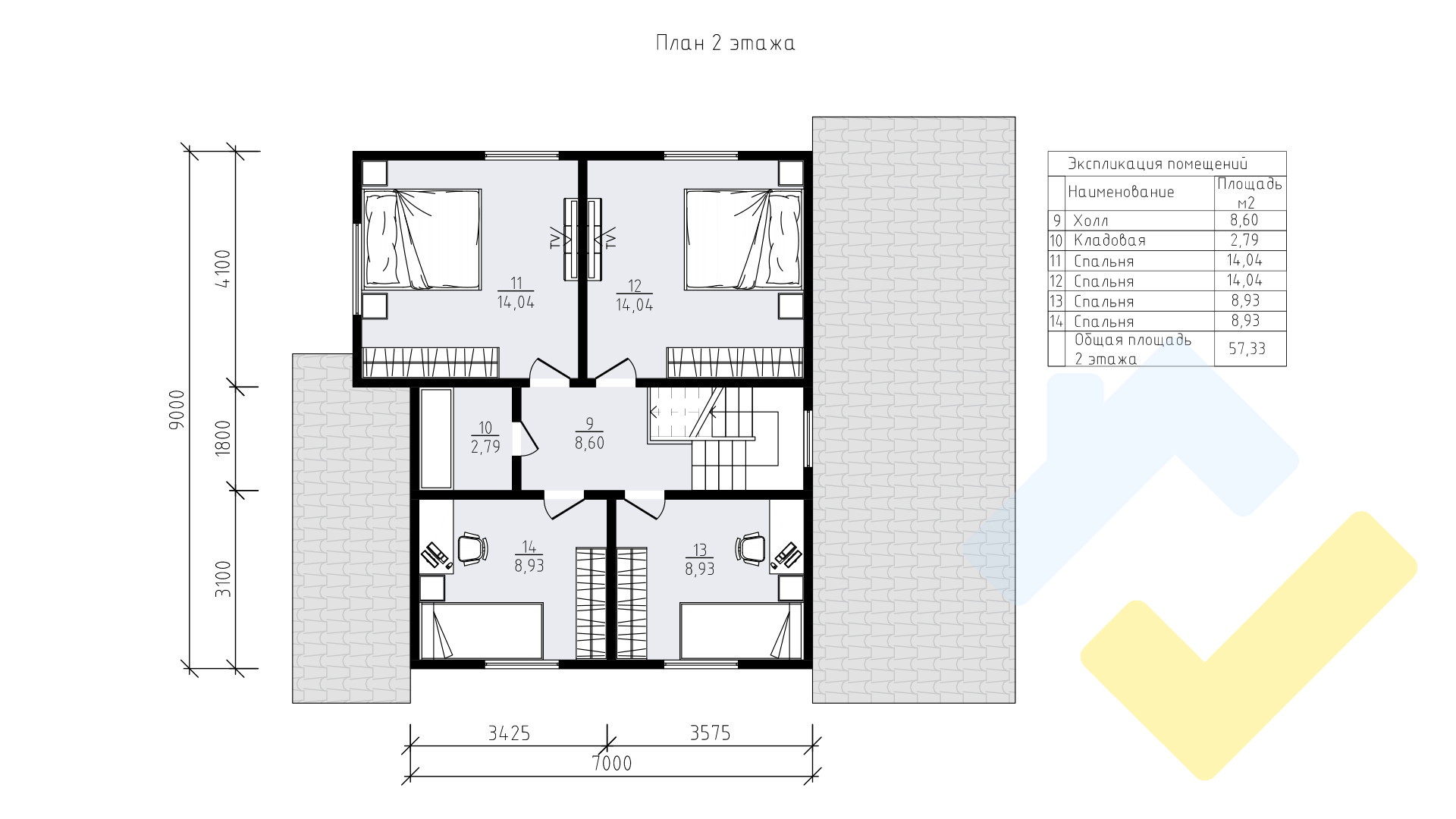
Строительство каркасного дома 9х8 "Владимир" под ключ
Строительство каркасного дома 9х8 "Владимир" под ключ
Застройщик: АВИ Каркас
115.0 м²
1 / 3
🏠
115.0 м²
🛏
6 спален
🚿
1 санузл.
📐
2 этаж
🧱
Каркас
Похожие проекты
Похожие по цене
Похожие по площади
Кирпичный дом С-85 К «Вдохновение мини»
2 спальн. · 1 санузл. · 2 этаж
от 5 095 000 ₽
→
Стрелец 2
3 спальн. · 1 санузл. · 2 этаж
от 5 094 128 ₽
→
Проект К-124 10 на 9, площадью 182 за 6 061 500 руб
3 спальн. · 2 этаж
от 5 096 000 ₽
→
Проект одноэтажного дома с террасой Flora-115 м² из газоблока — Домострой
3 спальн. · 1 санузл. · 1 этаж
от 9 805 000 ₽
→
Яхрома
1 санузл. · 2 этаж
от 3 989 800 ₽
→
Дом по проекту «ЗС 26-17» - Золотое Сечение
3 спальн. · 2 санузл.
от 14 375 000 ₽
→
На сайт застройщика