Перейти к контенту
Подбор и сравнение проектов домов от застройщиков Московской области
Подборщик домов
Калькулятор сметы
Калькулятор площади
Форум
Блог
Главная
›
Каталог проектов
›
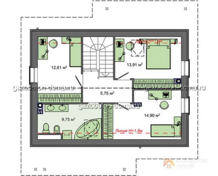
Дом из газобетона Проект ГБ-124
Дом из газобетона Проект ГБ-124
Застройщик: Газобетон Строй
130.0 м²
1 / 3
🏠
130.0 м²
🛏
3 спален
🚿
2 санузл.
🧱
Газобетон
Похожие проекты
Похожие по цене
Похожие по площади
Проект К-230 9 на 8, площадью 156 за 5 130 000 руб
6 спальн. · 2 этаж
от 5 130 000 ₽
→
Аллебро 80
3 спальн. · 1 этаж
от 5 127 893 ₽
→
Каркасный дом С-129 КР «Суоми»
3 спальн. · 2 санузл. · 3 этаж
от 5 140 000 ₽
→
Проект дома «Ирвинг»
3 спальн. · 1 этаж
от 11 968 800 ₽
→
Проект одноэтажного дома "Ольга" из бруса
2 спальн. · 2 этаж
от 10 687 305 ₽
→
Проект одноэтажного каркасного дома "Княжич ТН1"
2 этаж
от 9 839 214 ₽
→
На сайт застройщика