Перейти к контенту
Подбор и сравнение проектов домов от застройщиков Московской области
Подборщик домов
Калькулятор сметы
Калькулятор площади
Форум
Блог
Главная
›
Каталог проектов
›
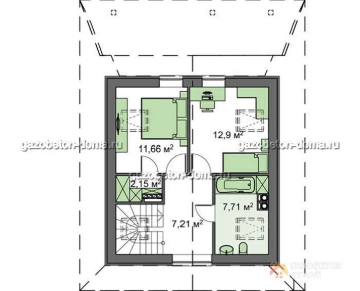
Дом из газобетона Проект ГБ-185
Дом из газобетона Проект ГБ-185
Застройщик: Газобетон Строй
100.0 м²
1 / 3
🏠
100.0 м²
🛏
3 спален
🚿
2 санузл.
📐
2 этаж
🧱
Газобетон
Похожие проекты
Похожие по цене
Похожие по площади
Стрелец 3 ЛК
3 спальн. · 1 санузл. · 2 этаж
от 3 619 800 ₽
→
Весна М 4
3 спальн. · 1 санузл. · 1 этаж
от 3 624 000 ₽
→
Весна М 4
3 спальн. · 1 санузл. · 1 этаж
от 3 624 000 ₽
→
Проект одноэтажного дома "Чиполлино" из бруса
1 спальн. · 2 этаж
от 7 543 632 ₽
→
Проект одноэтажного каркасного дома "Диш2"
4 спальн. · 2 этаж
от 7 315 176 ₽
→
Строительство каркасного дома 8х7 "Валенсия" под ключ
4 спальн. · 2 санузл. · 2 этаж
от 4 262 000 ₽
→
На сайт застройщика