Перейти к контенту
Подбор и сравнение проектов домов от застройщиков Московской области
Подборщик домов
Калькулятор сметы
Калькулятор площади
Форум
Блог
Главная
›
Каталог проектов
›
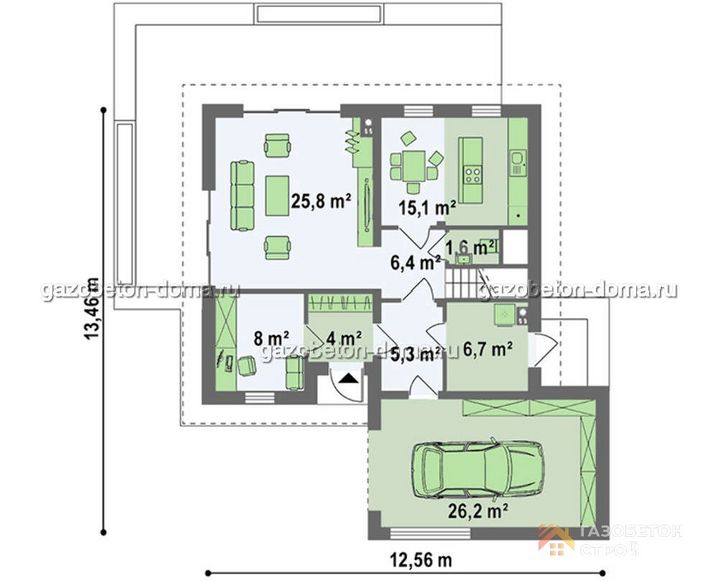
Дом из газобетона Проект ГБ-202
Дом из газобетона Проект ГБ-202
Застройщик: Газобетон Строй
160.0 м²
1 / 3
🏠
160.0 м²
🛏
3 спален
🚿
2 санузл.
📐
2 этаж
🧱
Газобетон
Похожие проекты
Похожие по цене
Похожие по площади
Проект одноэтажного дома "Малыш" из бруса
2 этаж
от 8 065 012 ₽
→
Проект одноэтажного каркасного дома "Кристина"
3 спальн. · 2 этаж
от 8 064 982 ₽
→
Проект К-225 8 на 17, площадью 288 за 9 510 000 руб
4 спальн. · 2 этаж
от 8 064 000 ₽
→
Проект двухэтажного каркасного дома Усадьба S под ключ от компании БАКО
4 спальн. · 2 санузл. · 2 этаж
от 6 988 800 ₽
→
Дом из газобетона Проект ГБ-186
3 спальн. · 2 санузл. · 1 этаж
от 8 049 000 ₽
→
Дом из газобетона Проект ГБ-188
3 спальн. · 2 санузл. · 2 этаж
от 6 159 000 ₽
→
На сайт застройщика