Перейти к контенту
Подбор и сравнение проектов домов от застройщиков Московской области
Подборщик домов
Калькулятор сметы
Калькулятор площади
Форум
Блог
Главная
›
Каталог проектов
›
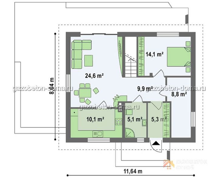
Дом из газобетона Проект ГБ-219
Дом из газобетона Проект ГБ-219
Застройщик: Газобетон Строй
160.0 м²
1 / 3
🏠
160.0 м²
🛏
3 спален
🚿
2 санузл.
📐
2 этаж
🧱
Газобетон
Похожие проекты
Похожие по цене
Похожие по площади
Дом из газобетона Проект ГБ-238
3 спальн. · 2 санузл.
от 5 419 000 ₽
→
Проект дома «Говорово» | ЭкоТех
1 спальн. · 1 санузл. · 1 этаж
от 5 419 000 ₽
→
Проект К-109 8 на 10, площадью 163 за 5 421 000 руб
3 спальн. · 2 этаж
от 5 421 000 ₽
→
Проект двухэтажного каркасного дома Усадьба S под ключ от компании БАКО
4 спальн. · 2 санузл. · 2 этаж
от 6 988 800 ₽
→
Дом из газобетона Проект ГБ-186
3 спальн. · 2 санузл. · 1 этаж
от 8 049 000 ₽
→
Дом из газобетона Проект ГБ-188
3 спальн. · 2 санузл. · 2 этаж
от 6 159 000 ₽
→
На сайт застройщика