Перейти к контенту
Подбор и сравнение проектов домов от застройщиков Московской области
Подборщик домов
Калькулятор сметы
Калькулятор площади
Форум
Блог
Главная
›
Каталог проектов
›
Дом из газобетона Проект ГБ-223
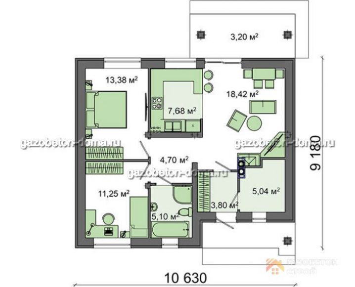
Дом из газобетона Проект ГБ-223
Застройщик: Газобетон Строй
90.0 м²
1 / 2
🏠
90.0 м²
🛏
3 спален
🚿
2 санузл.
📐
1 этаж
🧱
Газобетон
Похожие проекты
Похожие по цене
Похожие по площади
Проект К-66 11 на 7, площадью 77 за 3 060 750 руб
3 спальн. · 1 этаж
от 3 060 750 ₽
→
Проект К-8 10 на 4, площадью 84 за 2 778 000 руб
3 спальн. · 2 этаж
от 3 057 600 ₽
→
Каркасный дом 8x8 Проект "Кордиерит"
4 спальн. · 1 санузл. · 2 этаж
от 3 065 000 ₽
→
Проект DOMFIX 1 - одноэтажный каменный дом
2 спальн. · 1 этаж
от 4 950 000 ₽
→
Проект одноэтажного каркасного дома "Сириус"
3 спальн. · 2 этаж
от 6 446 499 ₽
→
Каркасная баня «КБ-61
от 4 935 000 ₽
→
На сайт застройщика