Перейти к контенту
Подбор и сравнение проектов домов от застройщиков Московской области
Подборщик домов
Калькулятор сметы
Калькулятор площади
Форум
Блог
Главная
›
Каталог проектов
›
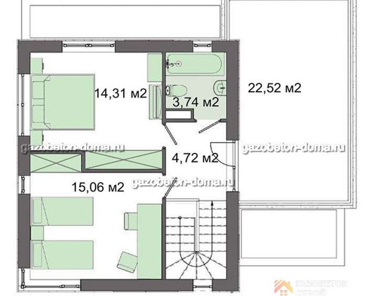
Дом из газобетона Проект ГБ-4
Дом из газобетона Проект ГБ-4
Застройщик: Газобетон Строй
140.0 м²
1 / 3
🏠
140.0 м²
🛏
3 спален
🚿
2 санузл.
📐
2 этаж
🧱
Газобетон
Похожие проекты
Похожие по цене
Похожие по площади
Дом из газобетона Проект ГБ-243
3 спальн. · 2 санузл.
от 4 379 000 ₽
→
Канадец 15
4 спальн. · 2 санузл. · 2 этаж
от 4 379 800 ₽
→
Добрыня 6
3 спальн. · 1 санузл. · 1 этаж
от 4 380 000 ₽
→
Проект одноэтажного дома "Золотой ключик-3" из бруса
5 спальн. · 2 этаж
от 10 821 755 ₽
→
Проект одноэтажного дома "Максима II" из бруса
5 спальн. · 2 этаж
от 10 591 022 ₽
→
Строительство каркасного дома 15х12 "Айрис" под ключ
5 спальн. · 2 санузл. · 1 этаж
от 6 577 000 ₽
→
На сайт застройщика