Перейти к контенту
Подбор и сравнение проектов домов от застройщиков Московской области
Подборщик домов
Калькулятор сметы
Калькулятор площади
Форум
Блог
Главная
›
Каталог проектов
›
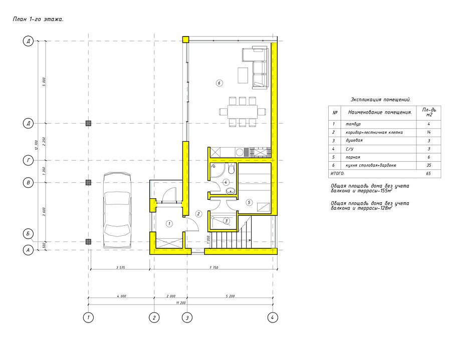
Дом по проекту «Бранденбург» - Золотое Сечение
Дом по проекту «Бранденбург» - Золотое Сечение
Застройщик: Золотое Сечение
174.0 м²
1 / 3
🏠
174.0 м²
🛏
2 спален
🚿
3 санузл.
🧱
Газобетонный блок
Похожие проекты
Похожие по цене
Похожие по площади
Проект «Hanford»
5 спальн. · 2 санузл.
от 21 750 000 ₽
→
Проект «Hanford»
5 спальн. · 2 санузл.
от 21 750 000 ₽
→
Проект A-212-1D
2 этаж
от 21 750 000 ₽
→
Каркасный дом «Ульяновка
от 14 130 000 ₽
→
Проект К-102 8 на 11, площадью 174 за 5 820 000 руб
4 спальн. · 2 этаж
от 5 820 000 ₽
→
Проект К-102 8 на 11, площадью 174 за 5 820 000 руб
4 спальн. · 2 этаж
от 4 872 000 ₽
→
На сайт застройщика