Перейти к контенту
Подбор и сравнение проектов домов от застройщиков Московской области
Подборщик домов
Калькулятор сметы
Калькулятор площади
Форум
Блог
Главная
›
Каталог проектов
›
Дом по проекту «Дессау» - Золотое Сечение
Дом по проекту «Дессау» - Золотое Сечение
Застройщик: Золотое Сечение
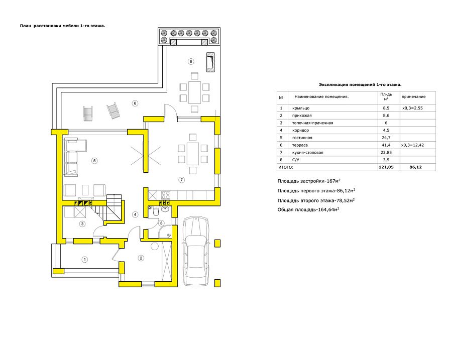
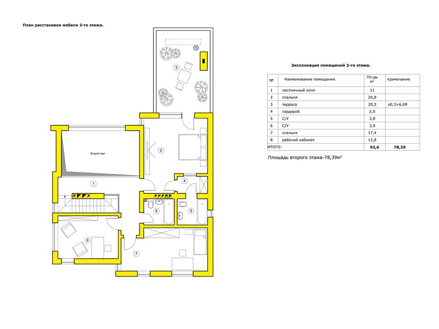
214.0 м²
1 / 3
🏠
214.0 м²
🛏
2 спален
🚿
3 санузл.
🧱
Газобетонный блок
Похожие проекты
Похожие по цене
Похожие по площади
Дом по проекту «ЗС 32-17» - Золотое Сечение
4 спальн. · 3 санузл.
от 26 750 000 ₽
→
Проект W-326-1K
2 этаж
от 26 748 400 ₽
→
Проект V-326-1K
2 этаж
от 26 740 200 ₽
→
Каркасный дом «Солнечное
от 11 985 000 ₽
→
Дом по проекту «ЗС 32-17» - Золотое Сечение
4 спальн. · 3 санузл.
от 26 750 000 ₽
→
Проект К-119 7 на 15, площадью 214 за 7 116 750 руб
4 спальн. · 2 этаж
от 7 116 750 ₽
→
На сайт застройщика