Перейти к контенту
Подбор и сравнение проектов домов от застройщиков Московской области
Подборщик домов
Калькулятор сметы
Калькулятор площади
Форум
Блог
Главная
›
Каталог проектов
›
Дом по проекту «Дортмунд» - Золотое Сечение
Дом по проекту «Дортмунд» - Золотое Сечение
Застройщик: Золотое Сечение
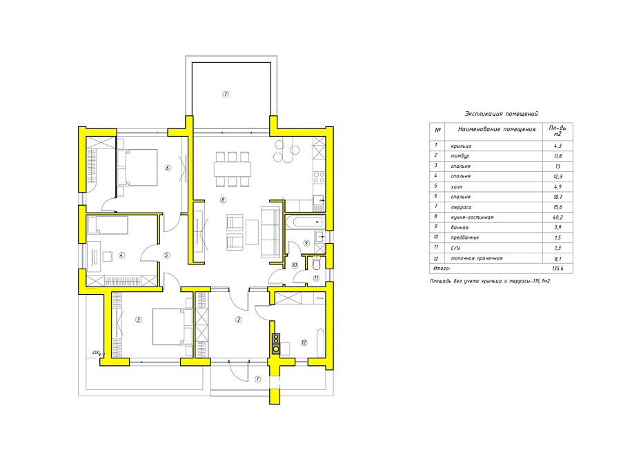
135.0 м²
1 / 2
🏠
135.0 м²
🛏
3 спален
🚿
1 санузл.
🧱
Газобетонный блок
Похожие проекты
Похожие по цене
Похожие по площади
Дом по проекту «ЗС 209-23» - Золотое Сечение
3 спальн. · 1 санузл.
от 16 875 000 ₽
→
Проект дома из керамоблоков 13х15 ТКБ-270: цена 9816000 руб.
5 спальн. · 4 санузл. · 2 этаж
от 16 880 000 ₽
→
Проект W-207-1K
2 этаж
от 16 867 400 ₽
→
Проект одноэтажного дома "Опалево-М2" из бруса
5 спальн. · 2 этаж
от 11 035 354 ₽
→
Дом по проекту «ЗС 209-23» - Золотое Сечение
3 спальн. · 1 санузл.
от 16 875 000 ₽
→
Проект К-40 8 на 9, площадью 135 за 4 563 000 руб
4 спальн. · 2 этаж
от 4 563 000 ₽
→
На сайт застройщика