Перейти к контенту
Подбор и сравнение проектов домов от застройщиков Московской области
Подборщик домов
Калькулятор сметы
Калькулятор площади
Форум
Блог
Главная
›
Каталог проектов
›
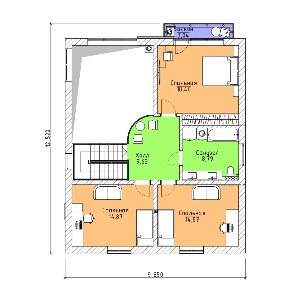
Дом по проекту «ЗС 104-22» - Золотое Сечение
Дом по проекту «ЗС 104-22» - Золотое Сечение
Застройщик: Золотое Сечение
184.0 м²
1 / 3
🏠
184.0 м²
🛏
4 спален
🚿
2 санузл.
🧱
Газобетонный блок/Керамический блок/Кирпич
Похожие проекты
Похожие по цене
Похожие по площади
Дом по проекту «ЗС 921-21» - Золотое Сечение
5 спальн. · 2 санузл.
от 23 000 000 ₽
→
Проект C-280-1K
2 этаж
от 22 999 360 ₽
→
Проект A-328-1P
2 этаж
от 22 988 000 ₽
→
Проект одноэтажного каркасного дома "Меркур"
5 спальн. · 2 этаж
от 13 167 317 ₽
→
Дом по проекту «ЗС 921-21» - Золотое Сечение
5 спальн. · 2 санузл.
от 23 000 000 ₽
→
Проект К-134 10 на 10, площадью 184 за 6 243 000 руб
4 спальн. · 2 этаж
от 6 243 000 ₽
→
На сайт застройщика