Перейти к контенту
Подбор и сравнение проектов домов от застройщиков Московской области
Подборщик домов
Калькулятор сметы
Калькулятор площади
Форум
Блог
Главная
›
Каталог проектов
›
Дом по проекту «ЗС 18-16» - Золотое Сечение
Дом по проекту «ЗС 18-16» - Золотое Сечение
Застройщик: Золотое Сечение
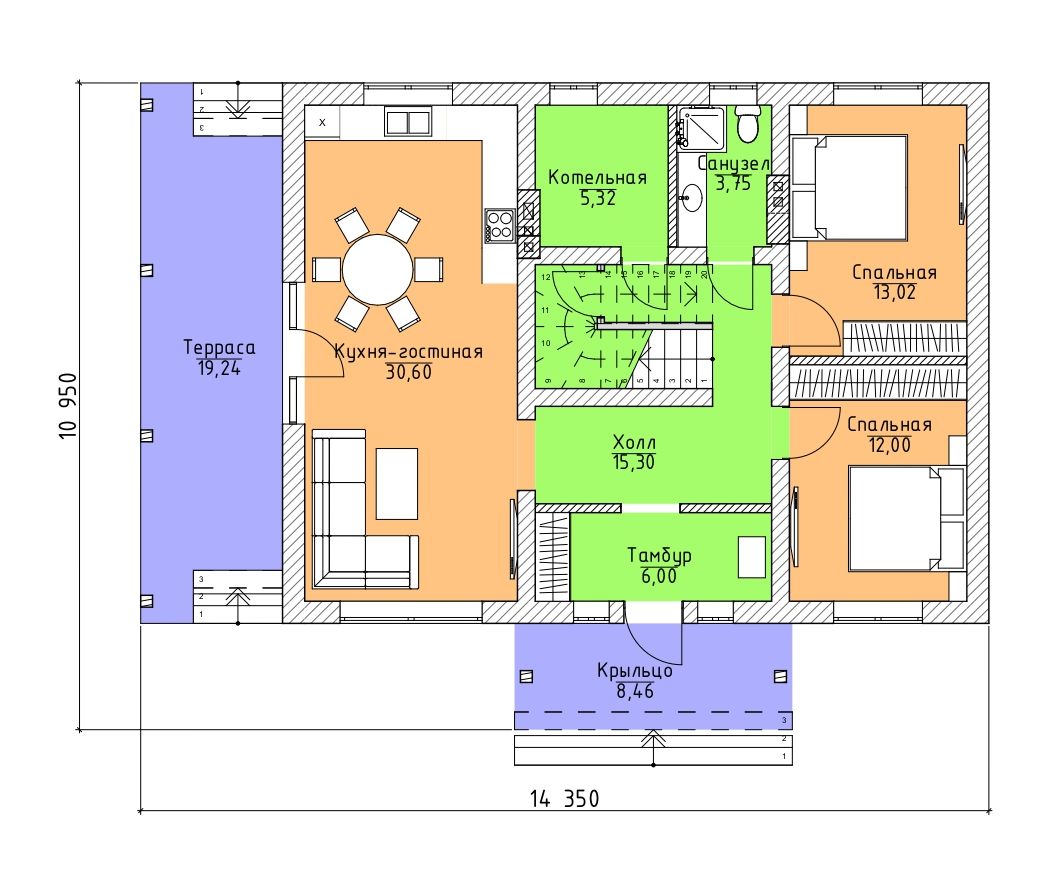
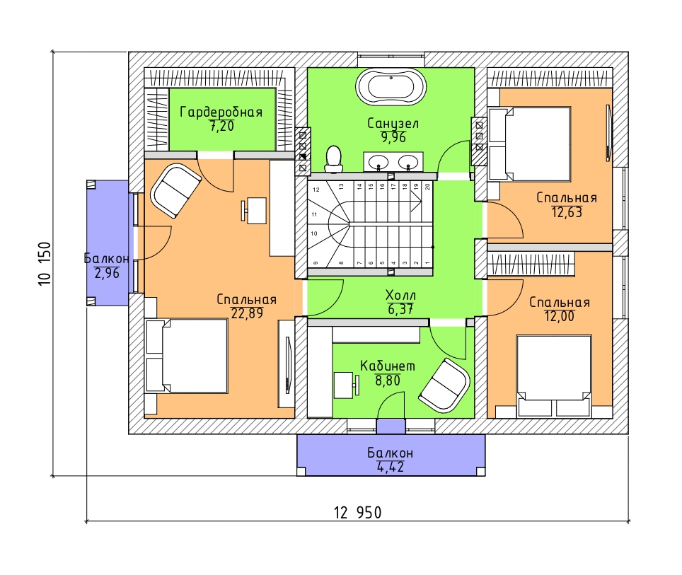
269.0 м²
1 / 3
🏠
269.0 м²
🛏
5 спален
🚿
2 санузл.
🧱
Газобетонный блок/Керамический блок/Кирпич
Похожие проекты
Похожие по цене
Похожие по площади
Проект R-410-1K
3 этаж
от 33 620 000 ₽
→
Проект G-224-1D
4 санузл. · 2 этаж
от 33 645 000 ₽
→
Проект одноэтажного дома "Фортуна 2" из бруса
2 этаж
от 33 601 519 ₽
→
Проект U-269-1K
2 этаж
от 22 066 200 ₽
→
Проект V-268-1P
2 этаж
от 18 821 600 ₽
→
Проект J-269-1K
3 этаж
от 22 041 600 ₽
→
На сайт застройщика