Перейти к контенту
Подбор и сравнение проектов домов от застройщиков Московской области
Подборщик домов
Калькулятор сметы
Калькулятор площади
Форум
Блог
Главная
›
Каталог проектов
›
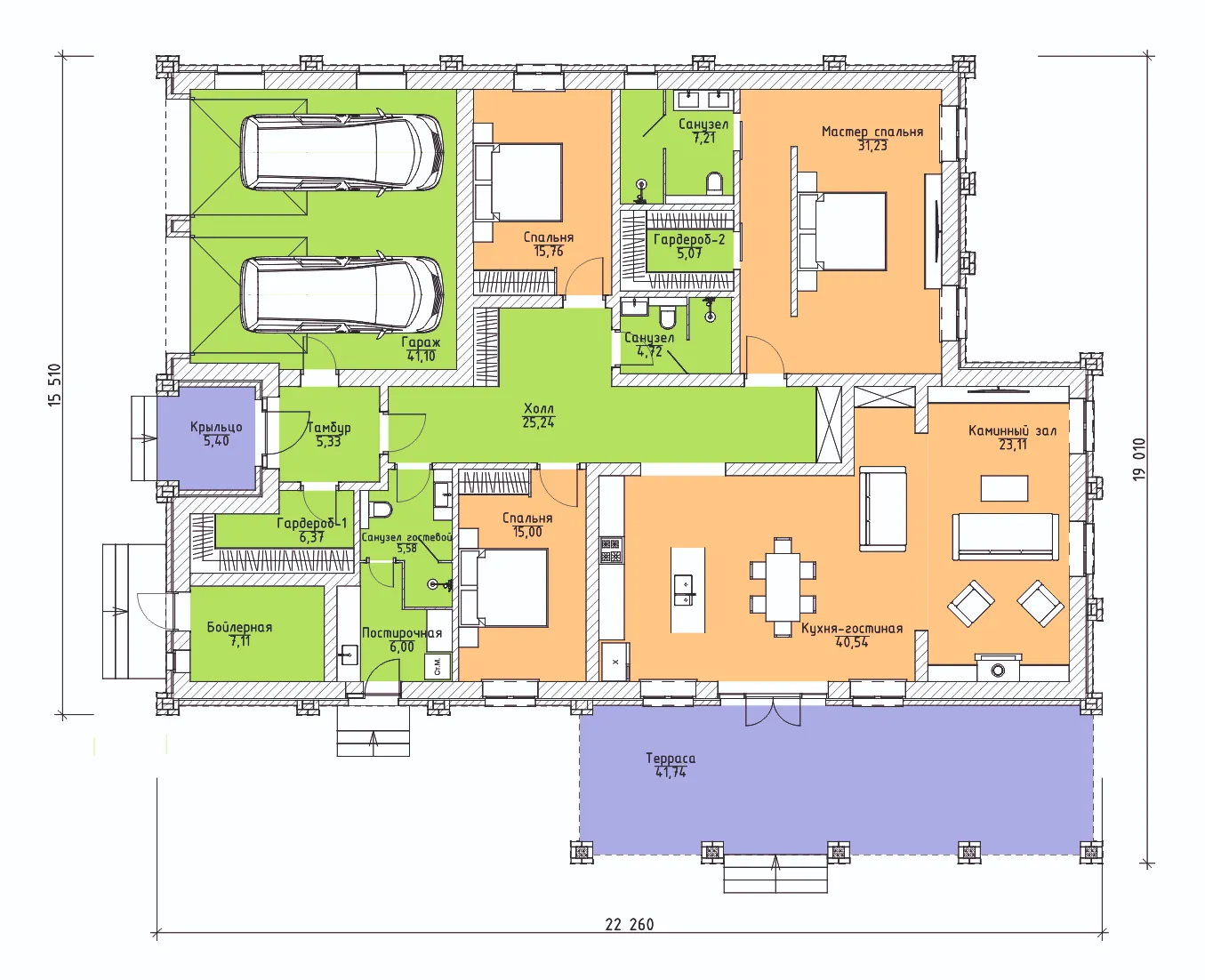
Дом по проекту «ЗС 192-24» - Золотое Сечение
Дом по проекту «ЗС 192-24» - Золотое Сечение
Застройщик: Золотое Сечение
287.0 м²
1 / 2
🏠
287.0 м²
🛏
3 спален
🚿
3 санузл.
🧱
Газобетонный блок/Керамический блок/Кирпич
Похожие проекты
Похожие по цене
Похожие по площади
Дом по проекту «ЗС 200-17» - Золотое Сечение
3 спальн. · 3 санузл.
от 35 875 000 ₽
→
Двухэтажный дом в стиле Хай-Тек «CHARLESTON»
3 спальн. · 5 санузл. · 2 этаж
от 35 916 000 ₽
→
Проект дома W-513-1P
4 санузл. · 3 этаж
от 35 938 000 ₽
→
Дом по проекту «ЗС 200-17» - Золотое Сечение
3 спальн. · 3 санузл.
от 35 875 000 ₽
→
Проект K-279-1K
3 этаж
от 23 534 000 ₽
→
Проект V-286-1K
3 этаж
от 23 506 940 ₽
→
На сайт застройщика