Перейти к контенту
Подбор и сравнение проектов домов от застройщиков Московской области
Подборщик домов
Калькулятор сметы
Калькулятор площади
Форум
Блог
Главная
›
Каталог проектов
›
Дом по проекту «ЗС 195-24» - Золотое Сечение
Дом по проекту «ЗС 195-24» - Золотое Сечение
Застройщик: Золотое Сечение
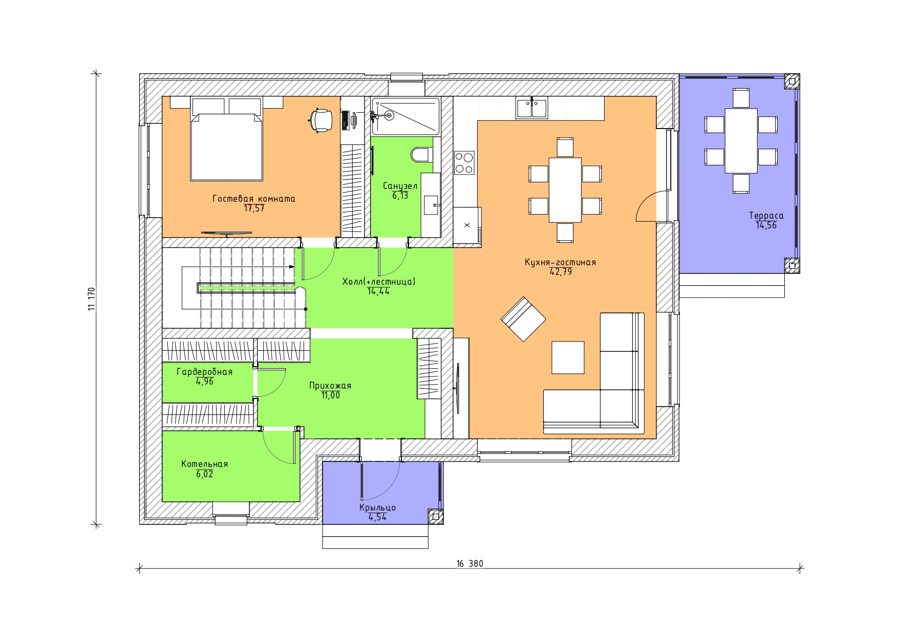
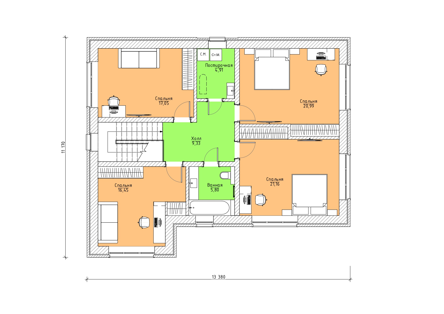
218.0 м²
1 / 3
🏠
218.0 м²
🛏
5 спален
🚿
2 санузл.
🧱
Газобетонный блок/Керамический блок/Кирпич
Похожие проекты
Похожие по цене
Похожие по площади
Проект «Telford»
6 спальн. · 3 санузл.
от 27 250 000 ₽
→
Проект «Telford»
6 спальн. · 3 санузл.
от 27 250 000 ₽
→
Проект U-332-1K
2 этаж
от 27 256 800 ₽
→
А-001
3 санузл. · 1 этаж
от 14 700 000 ₽
→
А-002
5 спальн. · 2 санузл. · 1 этаж
от 18 400 000 ₽
→
Проект К-188 15 на 15, площадью 218 за 8 754 750 руб
3 спальн. · 1 этаж
от 8 754 750 ₽
→
На сайт застройщика