Перейти к контенту
Подбор и сравнение проектов домов от застройщиков Московской области
Подборщик домов
Калькулятор сметы
Калькулятор площади
Форум
Блог
Главная
›
Каталог проектов
›
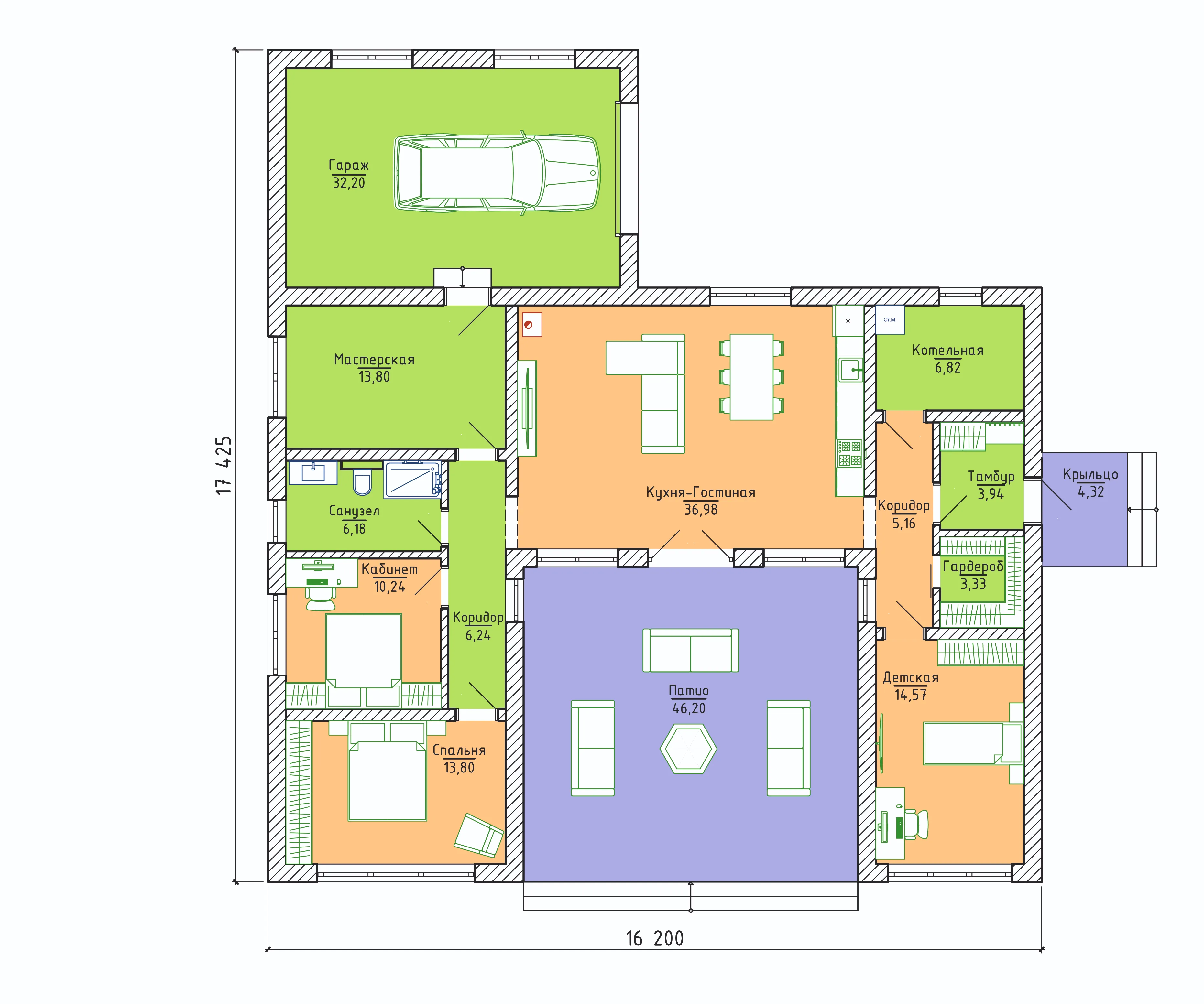
Дом по проекту «ЗС 201-24» - Золотое Сечение
Дом по проекту «ЗС 201-24» - Золотое Сечение
Застройщик: Золотое Сечение
204.0 м²
1 / 2
🏠
204.0 м²
🛏
3 спален
🚿
1 санузл.
🧱
Газобетонный блок/Керамический блок/Кирпич
Похожие проекты
Похожие по цене
Похожие по площади
Дом по проекту «Висбаден» - Золотое Сечение
3 спальн. · 2 санузл.
от 25 500 000 ₽
→
Дом по проекту «ЗС 100-22» - Золотое Сечение
4 спальн. · 3 санузл.
от 25 500 000 ₽
→
Дом по проекту «ЗС 422-22» - Золотое Сечение
3 спальн. · 2 санузл.
от 25 500 000 ₽
→
A-004
2 санузл. · 1 этаж
от 15 000 000 ₽
→
Проект двухэтажного дома "Уголок-М8" из бруса
3 спальн. · 2 этаж
от 12 035 253 ₽
→
Проект одноэтажного коттеджа "Рея" из газобетона
5 спальн. · 1 этаж
от 14 487 000 ₽
→
На сайт застройщика