Перейти к контенту
Подбор и сравнение проектов домов от застройщиков Московской области
Подборщик домов
Калькулятор сметы
Калькулятор площади
Форум
Блог
Главная
›
Каталог проектов
›
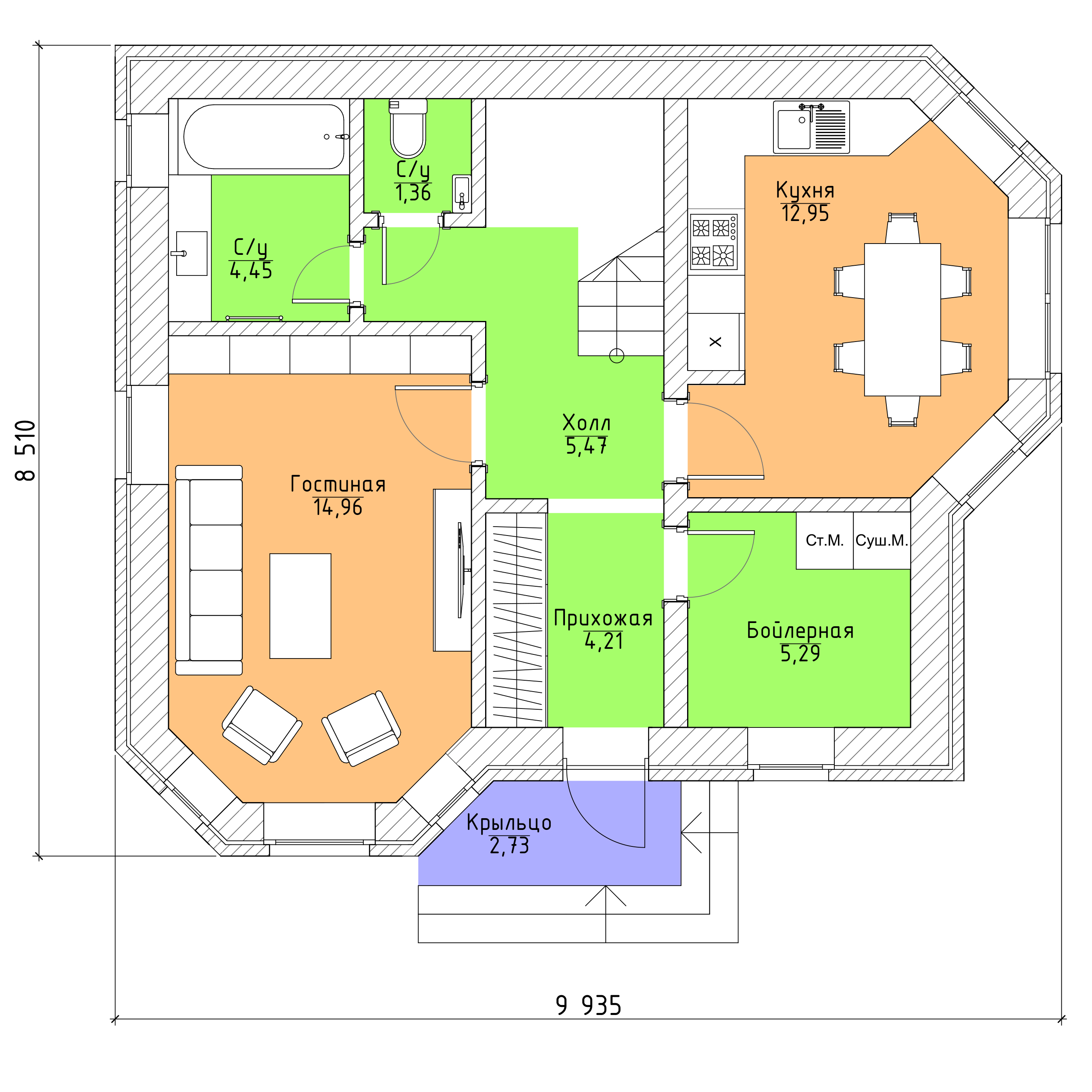
Дом по проекту «ЗС 227-24» - Золотое Сечение
Дом по проекту «ЗС 227-24» - Золотое Сечение
Застройщик: Золотое Сечение
99.0 м²
1 / 3
🏠
99.0 м²
🛏
3 спален
🚿
2 санузл.
🧱
Газобетонный блок/Керамический блок/Кирпич
Похожие проекты
Похожие по цене
Похожие по площади
Дом по проекту «ЗС 31-77» - Золотое Сечение
2 спальн. · 2 санузл.
от 12 375 000 ₽
→
Проект дома из газоблоков 12х11 ГББ-188: цена 8279000 руб.
5 спальн. · 3 санузл. · 2 этаж
от 12 374 000 ₽
→
Дома из керамических блоков Бунгало 2 M под ключ
4 спальн. · 2 санузл. · 2 этаж
от 12 367 300 ₽
→
Проект двухэтажного каркасного дома "Диш"
3 спальн. · 2 этаж
от 7 269 456 ₽
→
Проект двухэтажного каркасного дома "Швец"
3 спальн. · 2 этаж
от 7 539 203 ₽
→
Проект одноэтажного каркасного дома "Зена"
4 спальн. · 2 этаж
от 7 440 906 ₽
→
На сайт застройщика