Перейти к контенту
Подбор и сравнение проектов домов от застройщиков Московской области
Подборщик домов
Калькулятор сметы
Калькулятор площади
Форум
Блог
Главная
›
Каталог проектов
›
Дом по проекту «ЗС 233-24» - Золотое Сечение
Дом по проекту «ЗС 233-24» - Золотое Сечение
Застройщик: Золотое Сечение
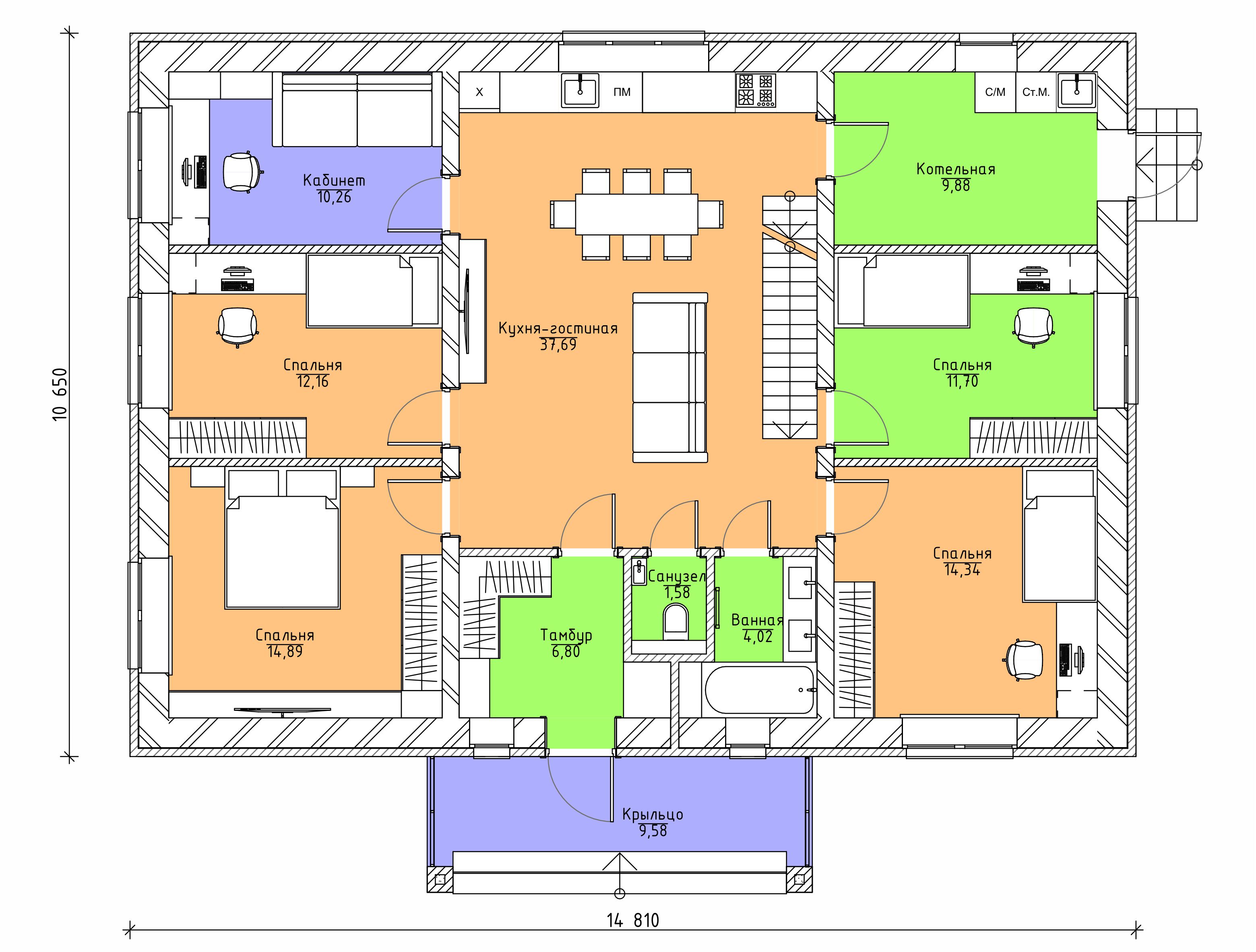
256.0 м²
1 / 3
🏠
256.0 м²
🛏
4 спален
🚿
1 санузл.
🧱
Керамический блок Porotherm
Похожие проекты
Похожие по цене
Похожие по площади
Проект дома L-457-1P
3 этаж
от 32 018 000 ₽
→
Проект R-390-1K
2 этаж
от 31 980 000 ₽
→
Проект M-389-1K
2 этаж
от 31 975 900 ₽
→
Проект К-185 14 на 9, площадью 256 за 8 518 500 руб
4 спальн. · 2 этаж
от 8 518 500 ₽
→
Проект К-185 14 на 9, площадью 256 за 8 518 500 руб
4 спальн. · 2 этаж
от 7 168 000 ₽
→
Проект дома F-257-1P
3 этаж
от 17 924 900 ₽
→
На сайт застройщика