Перейти к контенту
Подбор и сравнение проектов домов от застройщиков Московской области
Подборщик домов
Калькулятор сметы
Калькулятор площади
Форум
Блог
Главная
›
Каталог проектов
›
Дом по проекту «ЗС 4-16» - Золотое Сечение
Дом по проекту «ЗС 4-16» - Золотое Сечение
Застройщик: Золотое Сечение
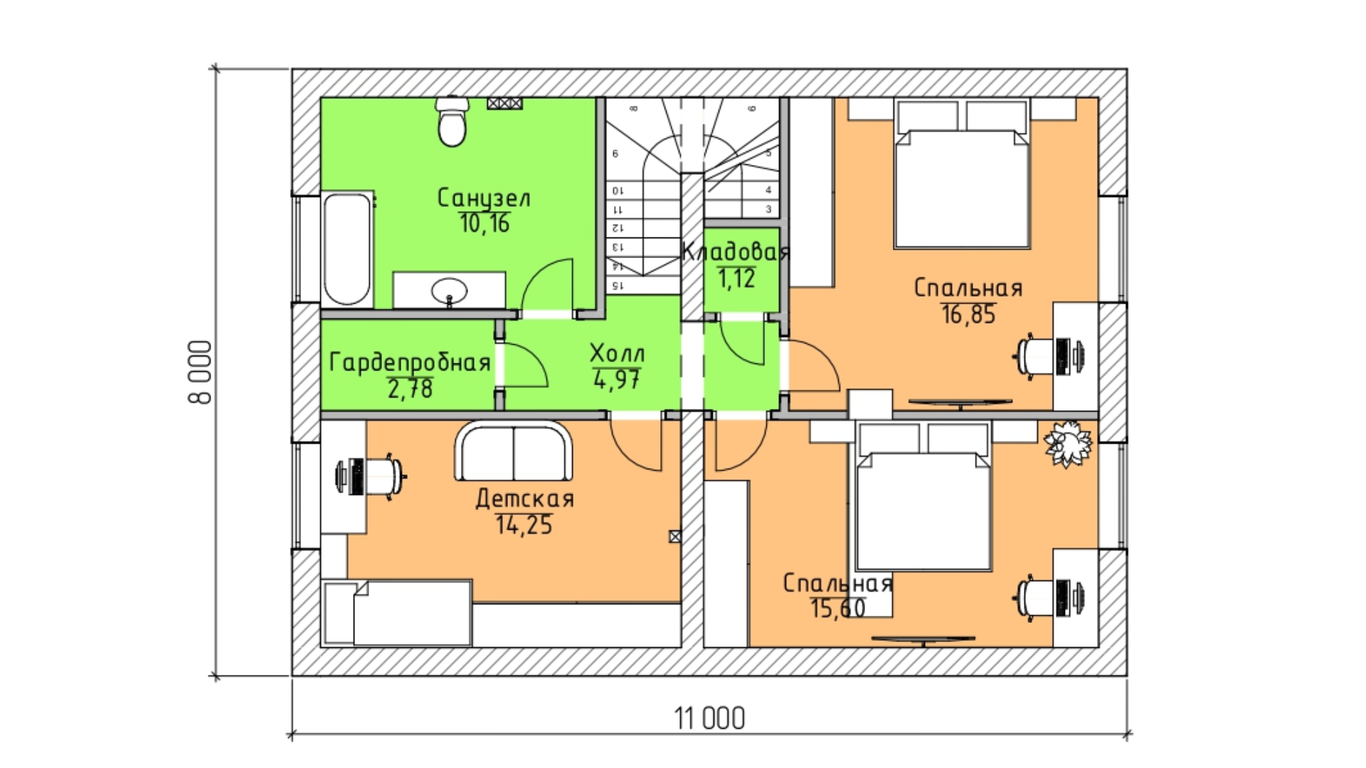
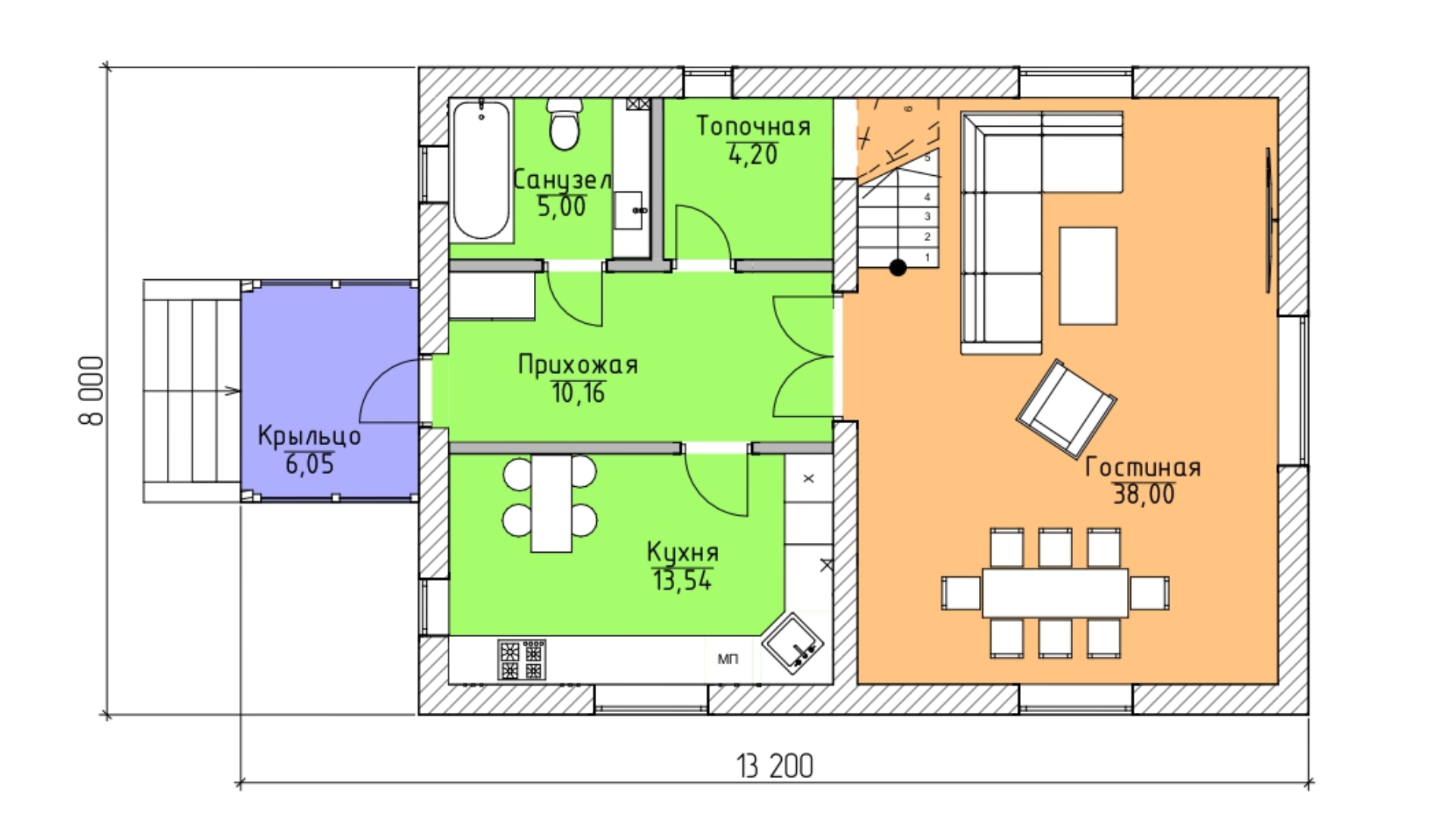
142.0 м²
1 / 3
🏠
142.0 м²
🛏
3 спален
🚿
2 санузл.
🧱
Газобетонный блок/Керамический блок/Кирпич
Похожие проекты
Похожие по цене
Похожие по площади
Проект M-253-1P
3 этаж
от 17 749 900 ₽
→
Проект U-218-1K
2 этаж
от 17 750 540 ₽
→
Проект T-254-1P
3 этаж
от 17 745 000 ₽
→
Проект одноэтажного дома "Аккорд" из бруса
3 спальн. · 2 этаж
от 10 005 252 ₽
→
Проект одноэтажного дома "Лукоморье-2" из бруса
4 спальн. · 2 этаж
от 10 305 450 ₽
→
Проект одноэтажного дома "Норвежец с топочной" из бруса
3 спальн. · 2 этаж
от 10 643 681 ₽
→
На сайт застройщика