Перейти к контенту
Подбор и сравнение проектов домов от застройщиков Московской области
Подборщик домов
Калькулятор сметы
Калькулятор площади
Форум
Блог
Главная
›
Каталог проектов
›
Дом по проекту «ЗС 41-16» - Золотое Сечение
Дом по проекту «ЗС 41-16» - Золотое Сечение
Застройщик: Золотое Сечение
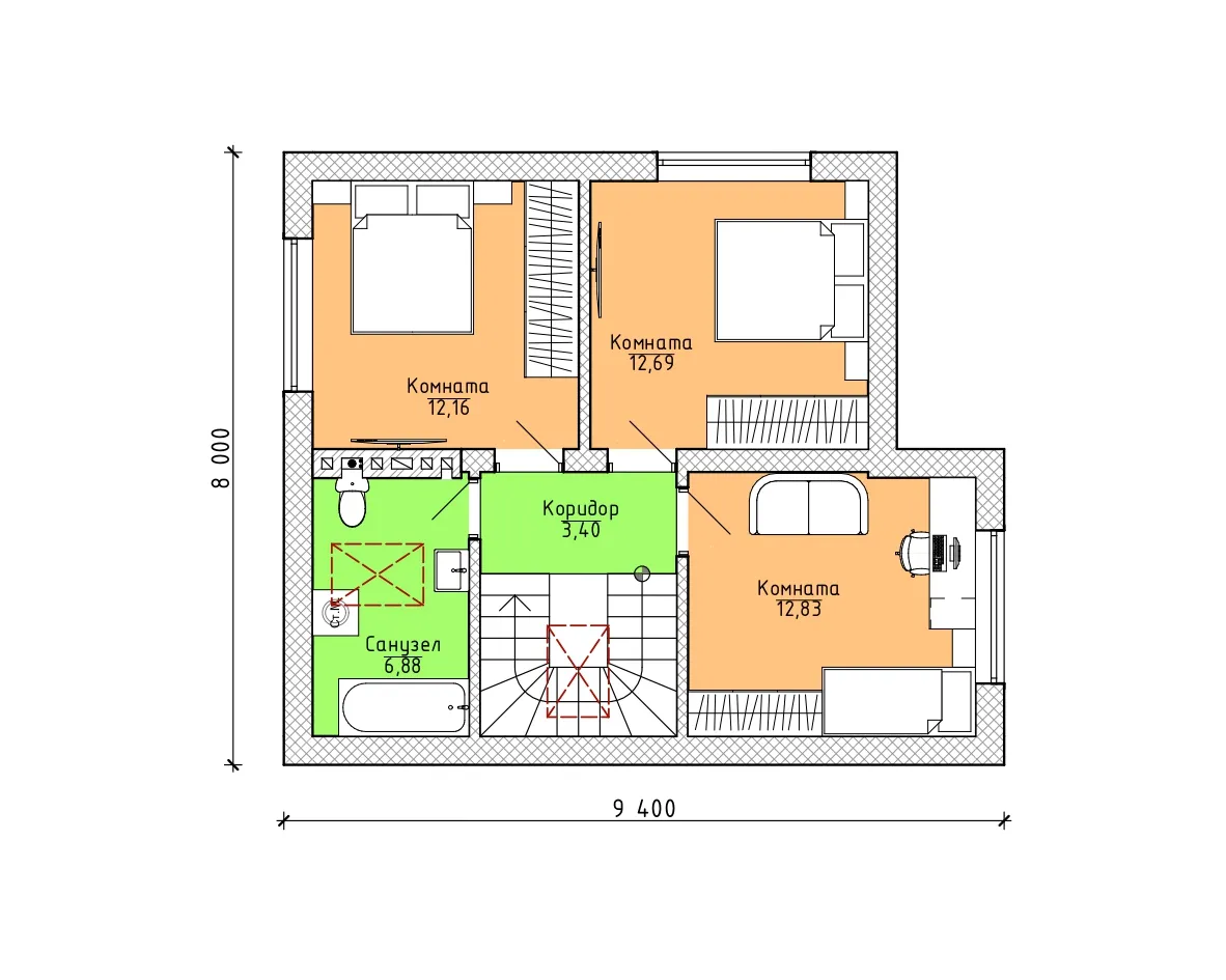
110.0 м²
1 / 3
🏠
110.0 м²
🛏
3 спален
🚿
2 санузл.
🧱
Газобетонный блок/керамический блок/кирпич
Похожие проекты
Похожие по цене
Похожие по площади
Дом по проекту «Майнц» - Золотое Сечение
2 спальн. · 1 санузл.
от 13 750 000 ₽
→
Проект одноэтажного дома "Ласточка" из бруса
4 спальн. · 2 этаж
от 13 749 813 ₽
→
Проект A-197-1P
2 этаж
от 13 750 800 ₽
→
Каркасный дом «Колпино
от 10 095 000 ₽
→
Дом из газобетона Проект ГБ-191
3 спальн. · 2 санузл. · 2 этаж
от 4 809 000 ₽
→
Дом из газобетона Проект ГБ-244
3 спальн. · 2 санузл. · 1 этаж
от 4 163 000 ₽
→
На сайт застройщика