Перейти к контенту
Подбор и сравнение проектов домов от застройщиков Московской области
Подборщик домов
Калькулятор сметы
Калькулятор площади
Форум
Блог
Главная
›
Каталог проектов
›
Дом по проекту «ЗС 53-17» - Золотое Сечение
Дом по проекту «ЗС 53-17» - Золотое Сечение
Застройщик: Золотое Сечение
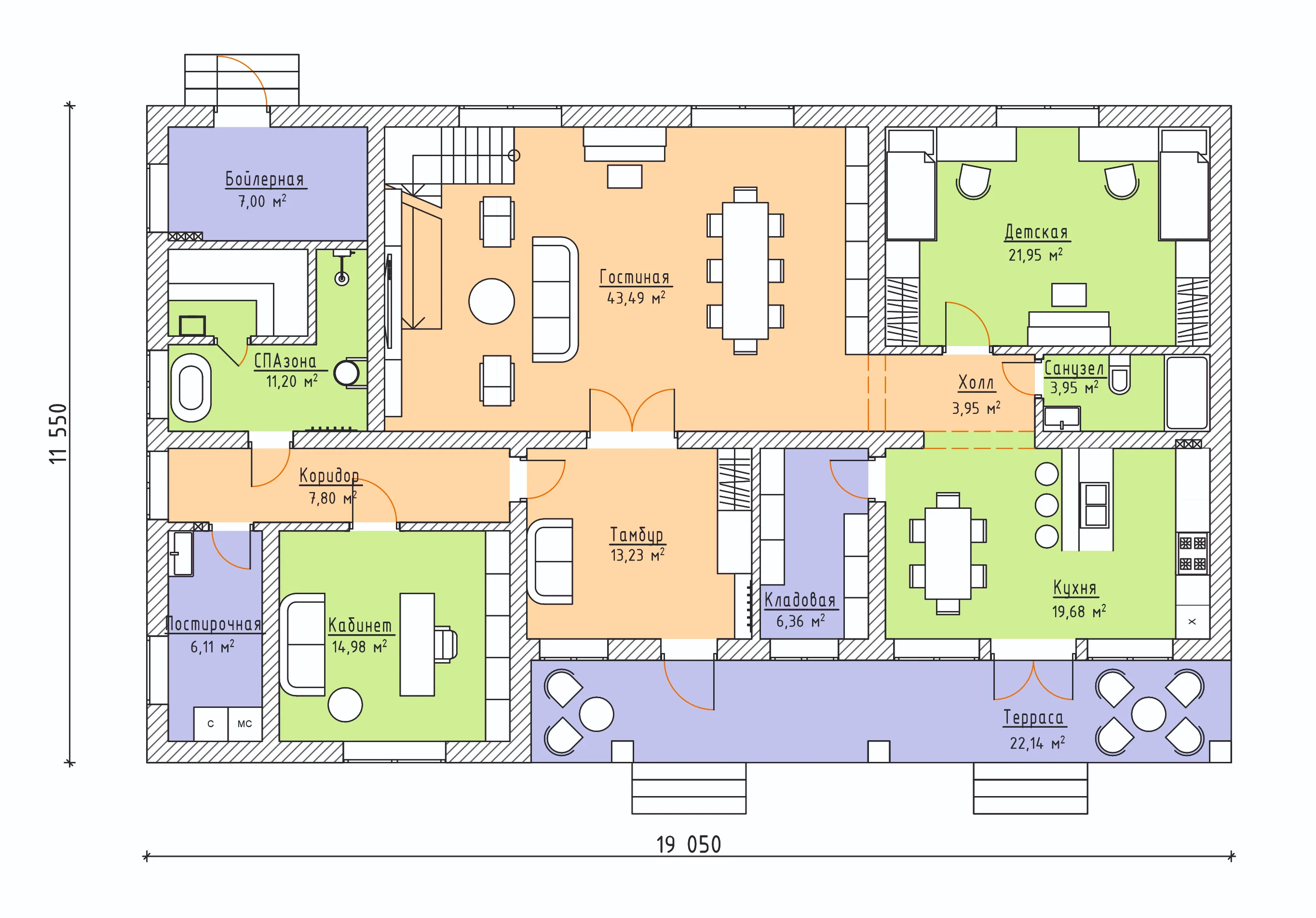
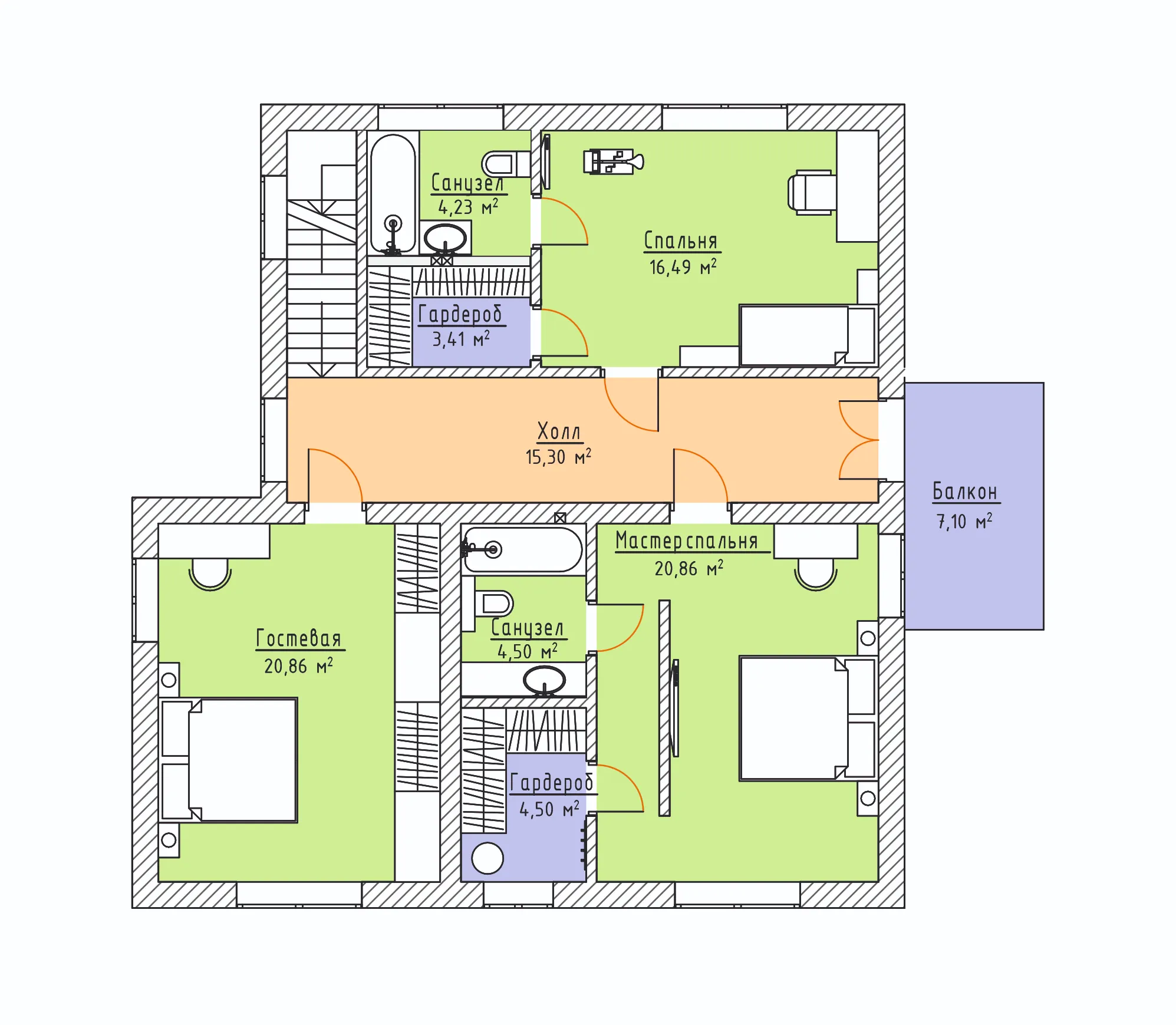
280.0 м²
1 / 3
🏠
280.0 м²
🛏
4 спален
🚿
3 санузл.
🧱
Газобетонный блок/керамический блок/кирпич
Похожие проекты
Похожие по цене
Похожие по площади
Двухэтажный дом с гаражом в подвале «Кейл»
3 спальн. · 3 санузл. · 2 этаж
от 35 022 000 ₽
→
Дом в стиле Райта с двумя террасами «LONGTAIN»
4 спальн. · 4 санузл. · 2 этаж
от 35 034 000 ₽
→
Проект J-425-1K
3 этаж
от 34 858 200 ₽
→
Проект К-159 9 на 16, площадью 280 за 9 396 000 руб
3 спальн. · 2 этаж
от 9 396 000 ₽
→
Проект К-159 9 на 16, площадью 280 за 9 396 000 руб
3 спальн. · 2 этаж
от 7 840 000 ₽
→
Проект дома «Гепард» | ЭкоТех
2 спальн. · 1 санузл. · 1 этаж
от 6 991 000 ₽
→
На сайт застройщика