Перейти к контенту
Подбор и сравнение проектов домов от застройщиков Московской области
Подборщик домов
Калькулятор сметы
Калькулятор площади
Форум
Блог
Главная
›
Каталог проектов
›
Дом по проекту «ЗС 590-20» - Золотое Сечение
Дом по проекту «ЗС 590-20» - Золотое Сечение
Застройщик: Золотое Сечение
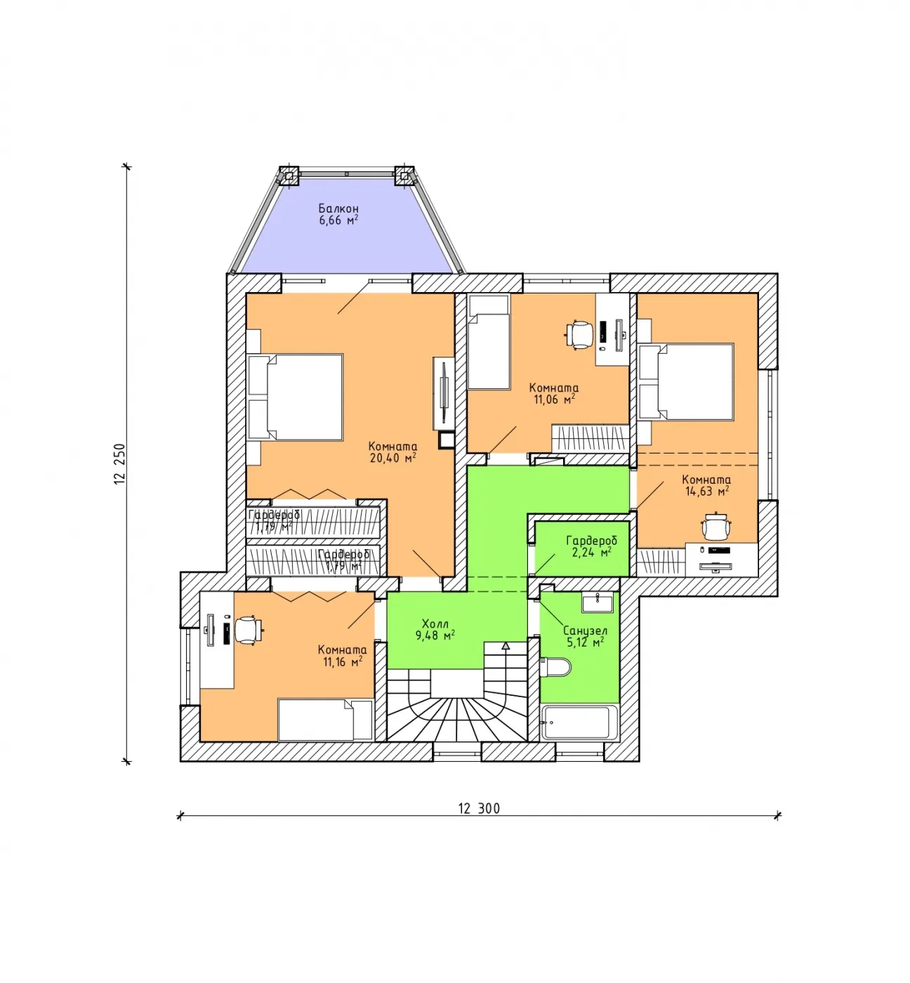
209.0 м²
1 / 3
🏠
209.0 м²
🛏
4 спален
🚿
2 санузл.
🧱
Газобетонный блок/Керамический блок/Кирпич
Похожие проекты
Похожие по цене
Похожие по площади
Проект S-287-1K
3 этаж
от 26 108 800 ₽
→
Проект E-318-1K
2 этаж
от 26 141 600 ₽
→
Проект L-319-1K
2 этаж
от 26 149 800 ₽
→
Проект одноэтажного комбинированного коттеджа "Эскимо"
5 спальн. · 2 этаж
от 8 928 700 ₽
→
Проект К-135 11 на 10, площадью 209 за 7 045 500 руб
4 спальн. · 2 этаж
от 7 045 500 ₽
→
Проект К-135 11 на 10, площадью 209 за 7 045 500 руб
4 спальн. · 2 этаж
от 5 852 000 ₽
→
На сайт застройщика