Перейти к контенту
Подбор и сравнение проектов домов от застройщиков Московской области
Подборщик домов
Калькулятор сметы
Калькулятор площади
Форум
Блог
Главная
›
Каталог проектов
›
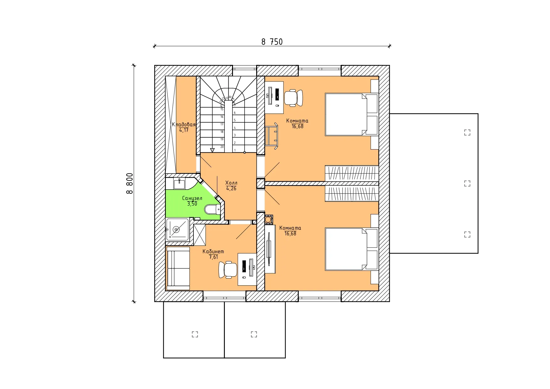
Дом по проекту «ЗС 607-20» - Золотое Сечение
Дом по проекту «ЗС 607-20» - Золотое Сечение
Застройщик: Золотое Сечение
127.0 м²
1 / 3
🏠
127.0 м²
🛏
2 спален
🚿
2 санузл.
🧱
Газобетонный блок/Керамический блок/Кирпич
Похожие проекты
Похожие по цене
Похожие по площади
Проект дома «Юрцево» | ЭкоТех
3 спальн. · 2 санузл. · 1 этаж
от 15 881 000 ₽
→
Проект U-193-1K
2 этаж
от 15 881 760 ₽
→
Проект дома из газоблоков 23х12 ГББ-333: цена 12895000 руб.
5 спальн. · 5 санузл. · 2 этаж
от 15 885 000 ₽
→
Строительство каркасного дома 11х8 "Крона" под ключ
5 спальн. · 2 санузл. · 2 этаж
от 4 650 000 ₽
→
Строительство каркасного дома 9х9 "Валькирия" под ключ
5 спальн. · 2 санузл. · 2 этаж
от 5 040 000 ₽
→
Дом «Филиппов» 7,5х12 м
4 спальн.
от 4 920 000 ₽
→
На сайт застройщика