Перейти к контенту
Подбор и сравнение проектов домов от застройщиков Московской области
Подборщик домов
Калькулятор сметы
Калькулятор площади
Форум
Блог
Главная
›
Каталог проектов
›
Дом по проекту «ЗС 704-23» - Золотое Сечение
Дом по проекту «ЗС 704-23» - Золотое Сечение
Застройщик: Золотое Сечение
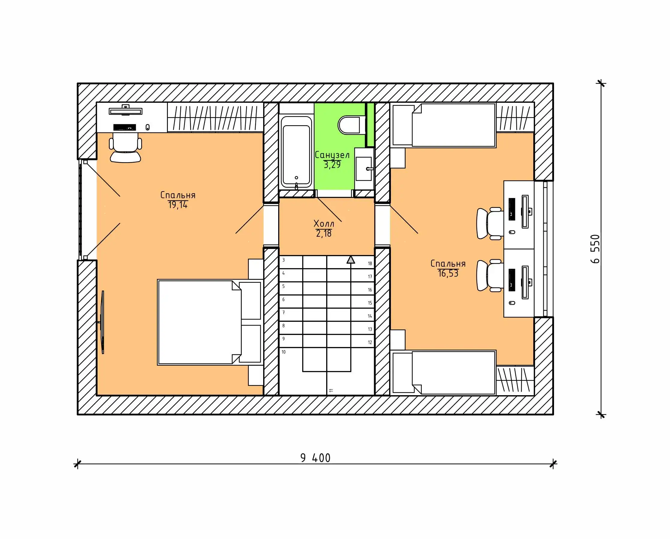
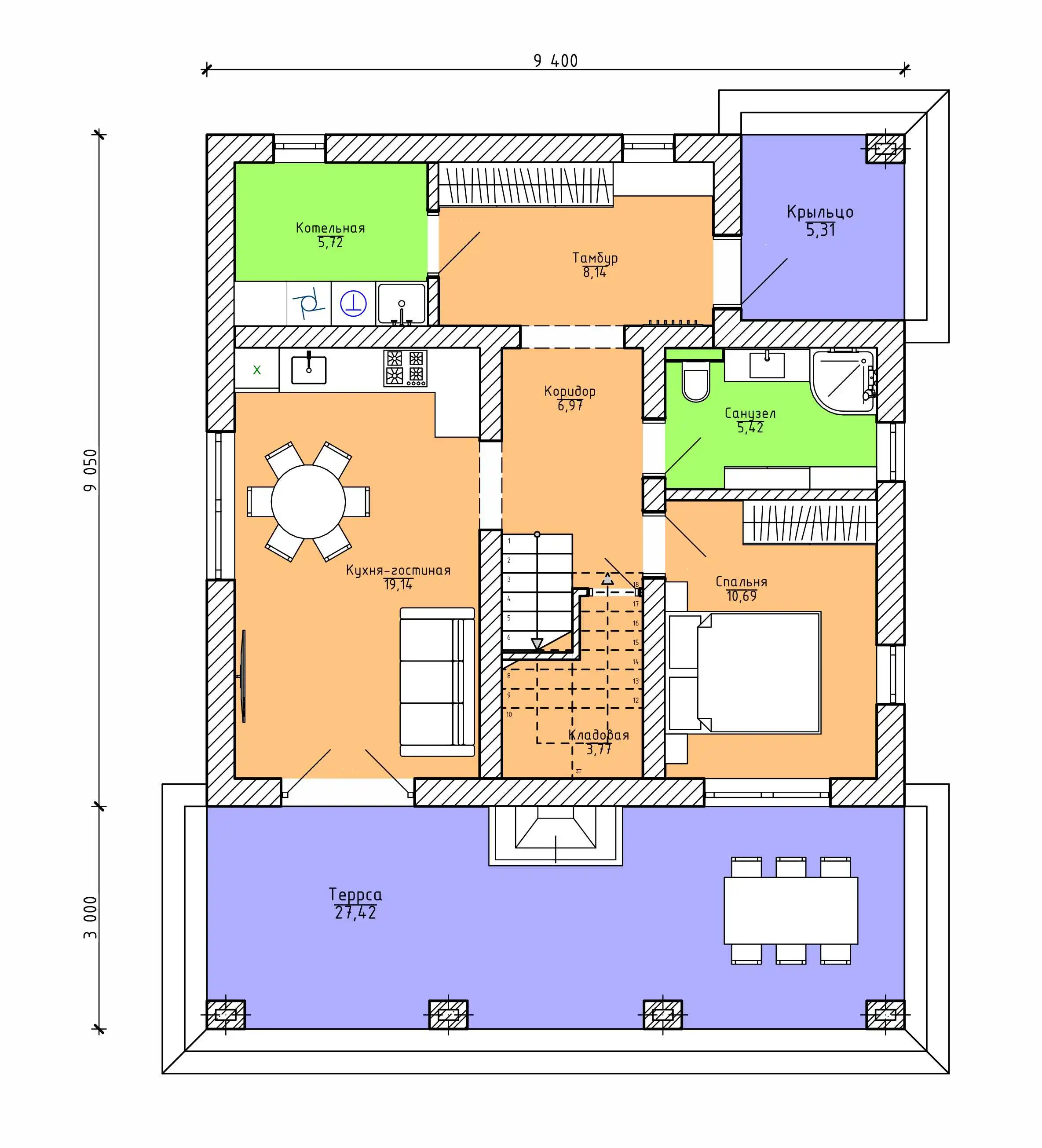
147.0 м²
1 / 3
🏠
147.0 м²
🛏
3 спален
🚿
2 санузл.
🧱
Газобетонный блок/Керамический блок/Кирпич
Похожие проекты
Похожие по цене
Похожие по площади
Проект D-123-1D
2 этаж
от 18 375 000 ₽
→
Кирпичный дом С-402 К «Блеск»
5 спальн. · 2 санузл. · 2 этаж
от 18 377 000 ₽
→
Проект U-225-1K
2 этаж
от 18 387 680 ₽
→
Проект одноэтажного коттеджа "Осенний вальс КД" из газобетона
2 спальн. · 2 этаж
от 8 638 000 ₽
→
Проект К-16 11 на 13, площадью 147 за 5 792 250 руб
2 спальн. · 1 этаж
от 5 792 250 ₽
→
Проект К-16 11 на 13, площадью 147 за 5 792 250 руб
2 спальн. · 1 этаж
от 4 527 600 ₽
→
На сайт застройщика