Перейти к контенту
Подбор и сравнение проектов домов от застройщиков Московской области
Подборщик домов
Калькулятор сметы
Калькулятор площади
Форум
Блог
Главная
›
Каталог проектов
›
Дом по проекту «ЗС 740-20» - Золотое Сечение
Дом по проекту «ЗС 740-20» - Золотое Сечение
Застройщик: Золотое Сечение
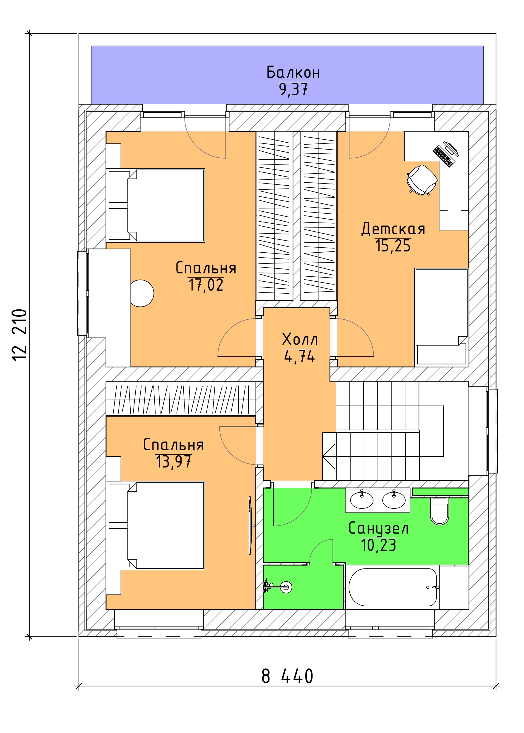
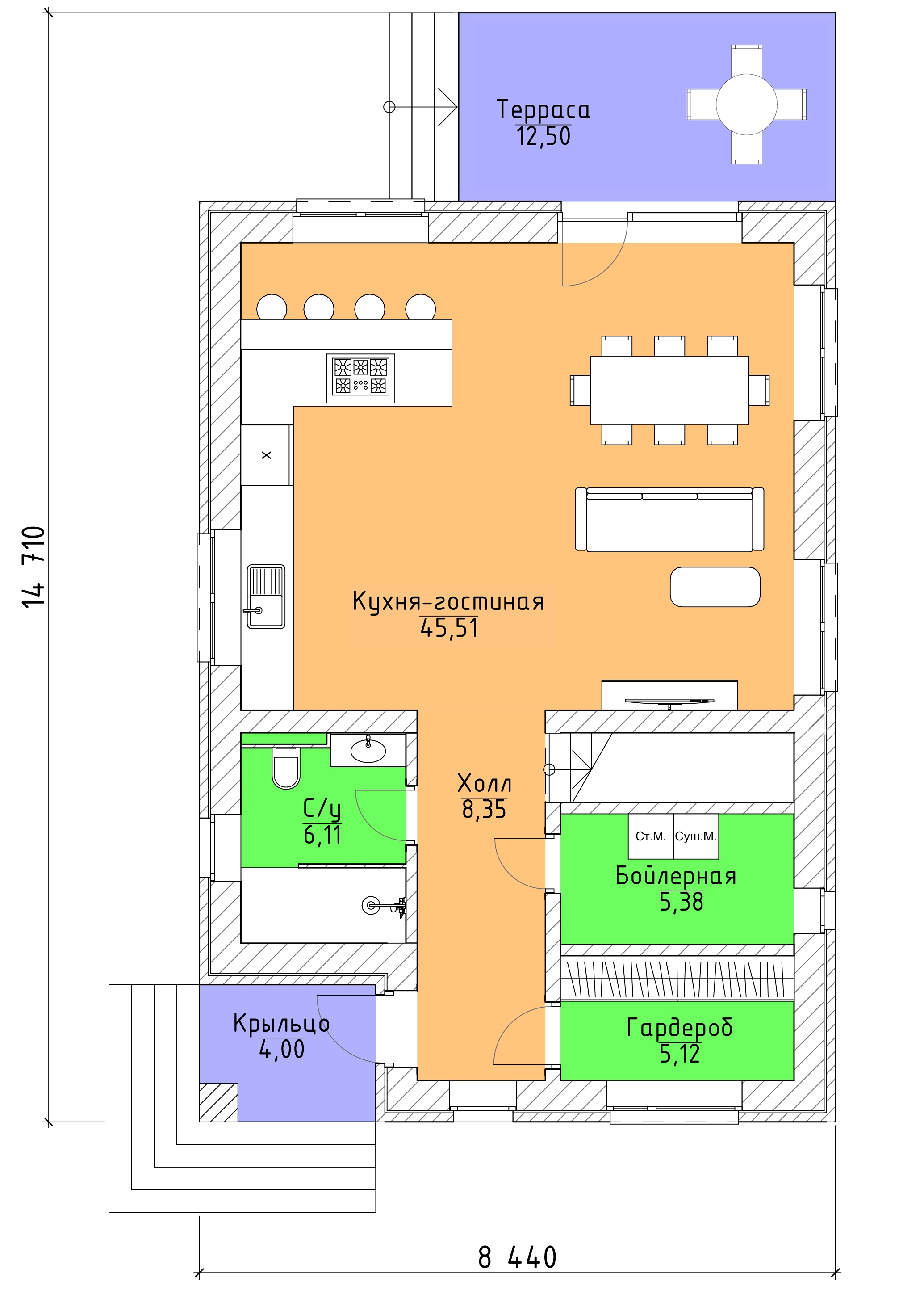
157.0 м²
1 / 3
🏠
157.0 м²
🛏
3 спален
🚿
2 санузл.
🧱
Газобетонный блок/Керамический блок
Похожие проекты
Похожие по цене
Похожие по площади
Дом по проекту «ЗС 148-23» - Золотое Сечение
3 спальн. · 2 санузл.
от 19 625 000 ₽
→
Дом по проекту «Паульберг» - Золотое Сечение
5 спальн. · 2 санузл.
от 19 625 000 ₽
→
Проект W-239-1K
2 этаж
от 19 622 600 ₽
→
Проект двухэтажного дома "Уголок-М4" из бруса
4 спальн. · 2 этаж
от 14 800 669 ₽
→
Дом по проекту «ЗС 148-23» - Золотое Сечение
3 спальн. · 2 санузл.
от 19 625 000 ₽
→
Дом по проекту «Паульберг» - Золотое Сечение
5 спальн. · 2 санузл.
от 19 625 000 ₽
→
На сайт застройщика