Перейти к контенту
Подбор и сравнение проектов домов от застройщиков Московской области
Подборщик домов
Калькулятор сметы
Калькулятор площади
Форум
Блог
Главная
›
Каталог проектов
›
Дом по проекту «ЗС 764-20» - Золотое Сечение
Дом по проекту «ЗС 764-20» - Золотое Сечение
Застройщик: Золотое Сечение
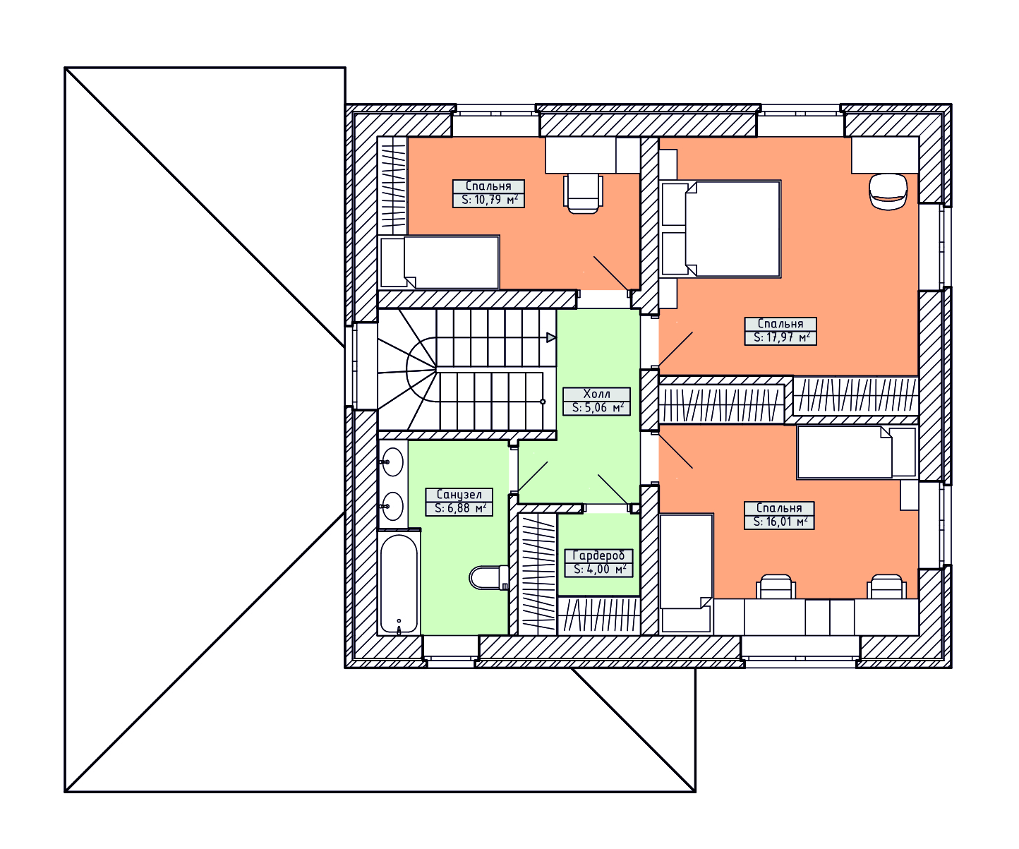
169.0 м²
1 / 3
🏠
169.0 м²
🛏
3 спален
🚿
2 санузл.
🧱
Газобетонный блок/Керамический блок/Кирпич
Похожие проекты
Похожие по цене
Похожие по площади
Проект Y-156-1D
2 этаж
от 21 120 000 ₽
→
Проект V-302-1P
2 этаж
от 21 145 600 ₽
→
Проект V-258-1K
2 этаж
от 21 148 620 ₽
→
Проект одноэтажного дома "Стелс" из бруса
3 спальн. · 2 этаж
от 12 414 825 ₽
→
Каркасный дом «Мельниково
от 14 295 000 ₽
→
Дом 3 спальни, второй свет № 363
2 этаж
от 12 609 600 ₽
→
На сайт застройщика