Перейти к контенту
Подбор и сравнение проектов домов от застройщиков Московской области
Подборщик домов
Калькулятор сметы
Калькулятор площади
Форум
Блог
Главная
›
Каталог проектов
›
Дом по проекту «ЗС 835-20» - Золотое Сечение
Дом по проекту «ЗС 835-20» - Золотое Сечение
Застройщик: Золотое Сечение
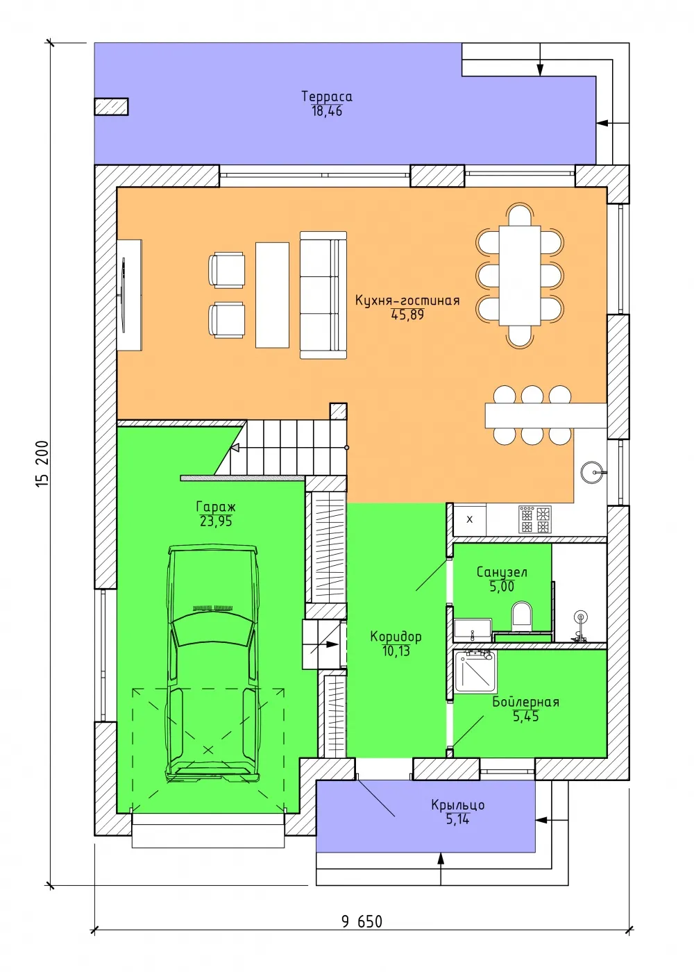
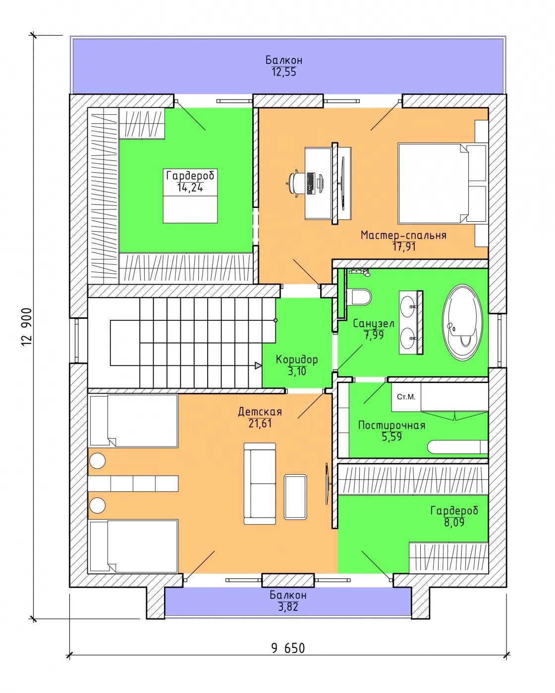
267.0 м²
1 / 3
🏠
267.0 м²
🛏
2 спален
🚿
2 санузл.
🧱
Газобетонный блок/Керамический блок/Кирпич
Похожие проекты
Похожие по цене
Похожие по площади
Проект J-407-1K
2 этаж
от 33 382 200 ₽
→
Проект E-477-1P
3 этаж
от 33 397 000 ₽
→
Большой одноэтажный дом «Готенберг» с террасой
4 спальн. · 4 санузл. · 1 этаж
от 33 336 000 ₽
→
Проект A-267-1K
2 этаж
от 21 894 000 ₽
→
Проект U-294-1P
3 этаж
от 18 688 600 ₽
→
Проект дома M-266-1P
2 этаж
от 18 685 100 ₽
→
На сайт застройщика