Перейти к контенту
Подбор и сравнение проектов домов от застройщиков Московской области
Подборщик домов
Калькулятор сметы
Калькулятор площади
Форум
Блог
Главная
›
Каталог проектов
›
Дом по проекту «ЗС 835-21» - Золотое Сечение
Дом по проекту «ЗС 835-21» - Золотое Сечение
Застройщик: Золотое Сечение
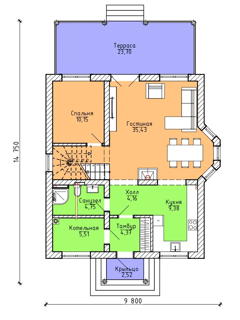
160.0 м²
1 / 3
🏠
160.0 м²
🛏
4 спален
🚿
2 санузл.
🧱
Газобетонный блок/Керамический блок/Кирпич
Похожие проекты
Похожие по цене
Похожие по площади
Дом по проекту «ЗС 79-14» - Золотое Сечение
4 спальн. · 2 санузл.
от 20 000 000 ₽
→
Дом Минаево из газобетона: заказать в Москве по низкой цене
2 этаж
от 19 990 000 ₽
→
Дом Минаево из кирпича: заказать в Москве по низкой цене
2 этаж
от 19 990 000 ₽
→
Проект двухэтажного каркасного дома Усадьба S под ключ от компании БАКО
4 спальн. · 2 санузл. · 2 этаж
от 6 988 800 ₽
→
Дом из газобетона Проект ГБ-186
3 спальн. · 2 санузл. · 1 этаж
от 8 049 000 ₽
→
Дом из газобетона Проект ГБ-188
3 спальн. · 2 санузл. · 2 этаж
от 6 159 000 ₽
→
На сайт застройщика