Перейти к контенту
Подбор и сравнение проектов домов от застройщиков Московской области
Подборщик домов
Калькулятор сметы
Калькулятор площади
Форум
Блог
Главная
›
Каталог проектов
›
Дом по проекту «ЗС 910-23» - Золотое Сечение
Дом по проекту «ЗС 910-23» - Золотое Сечение
Застройщик: Золотое Сечение
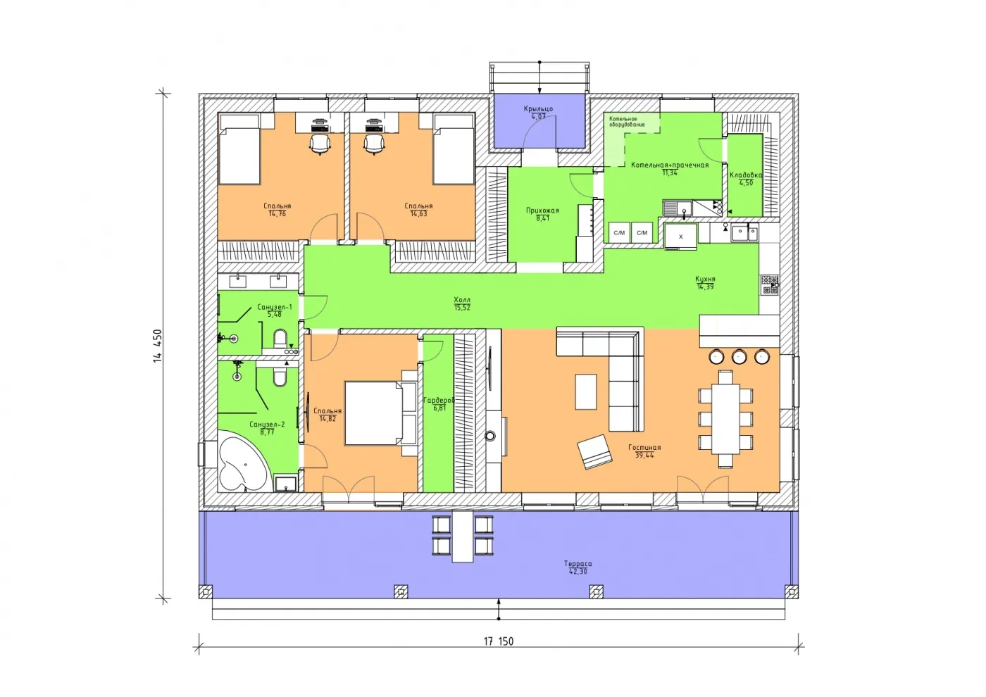
205.0 м²
1 / 2
🏠
205.0 м²
🛏
3 спален
🚿
2 санузл.
🧱
Газобетонный блок/Керамический блок/Кирпич
Похожие проекты
Похожие по цене
Похожие по площади
Проект V-312-1K
4 санузл. · 2 этаж
от 25 634 840 ₽
→
Проект D-171-1D
2 этаж
от 25 635 000 ₽
→
Проект U-366-1P
3 этаж
от 25 599 700 ₽
→
Проект двухэтажного дома "Булат" из бруса
3 спальн. · 2 этаж
от 16 090 207 ₽
→
Проект одноэтажного каркасного дома "Марфик"
5 спальн. · 2 этаж
от 15 162 365 ₽
→
Каркасный дом «Приозерск
от 10 515 000 ₽
→
На сайт застройщика