Перейти к контенту
Подбор и сравнение проектов домов от застройщиков Московской области
Подборщик домов
Калькулятор сметы
Калькулятор площади
Форум
Блог
Главная
›
Каталог проектов
›
Дом по проекту «Русхаус» - Золотое Сечение
Дом по проекту «Русхаус» - Золотое Сечение
Застройщик: Золотое Сечение
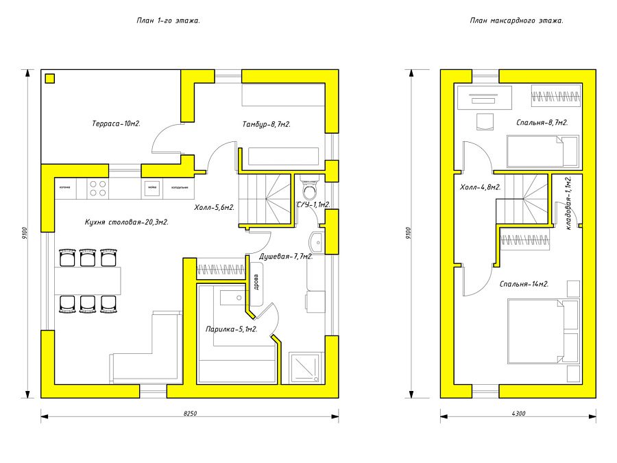
106.0 м²
1 / 2
🏠
106.0 м²
🛏
2 спален
🚿
1 санузл.
🧱
Газобетонный блок
Похожие проекты
Похожие по цене
Похожие по площади
Проект дома из газоблоков 16х13 ГББ-262: цена 8767000 руб.
4 спальн. · 2 санузл. · 2 этаж
от 13 256 000 ₽
→
Проект двухэтажного дома "Егерь" из бруса
2 спальн. · 2 этаж
от 13 242 799 ₽
→
Проект дома L-189-1P
2 этаж
от 13 258 000 ₽
→
Проект одноэтажного дома "Таймень" из бруса
3 спальн. · 1 этаж
от 8 578 721 ₽
→
Проект одноэтажного каркасного дома "Калипсо"
4 спальн. · 2 этаж
от 7 901 762 ₽
→
Дом свободной планировки №359
2 этаж
от 6 229 050 ₽
→
На сайт застройщика