Перейти к контенту
Подбор и сравнение проектов домов от застройщиков Московской области
Подборщик домов
Калькулятор сметы
Калькулятор площади
Форум
Блог
Главная
›
Каталог проектов
›
Дом по проекту «Хайдельберг» - Золотое Сечение
Дом по проекту «Хайдельберг» - Золотое Сечение
Застройщик: Золотое Сечение
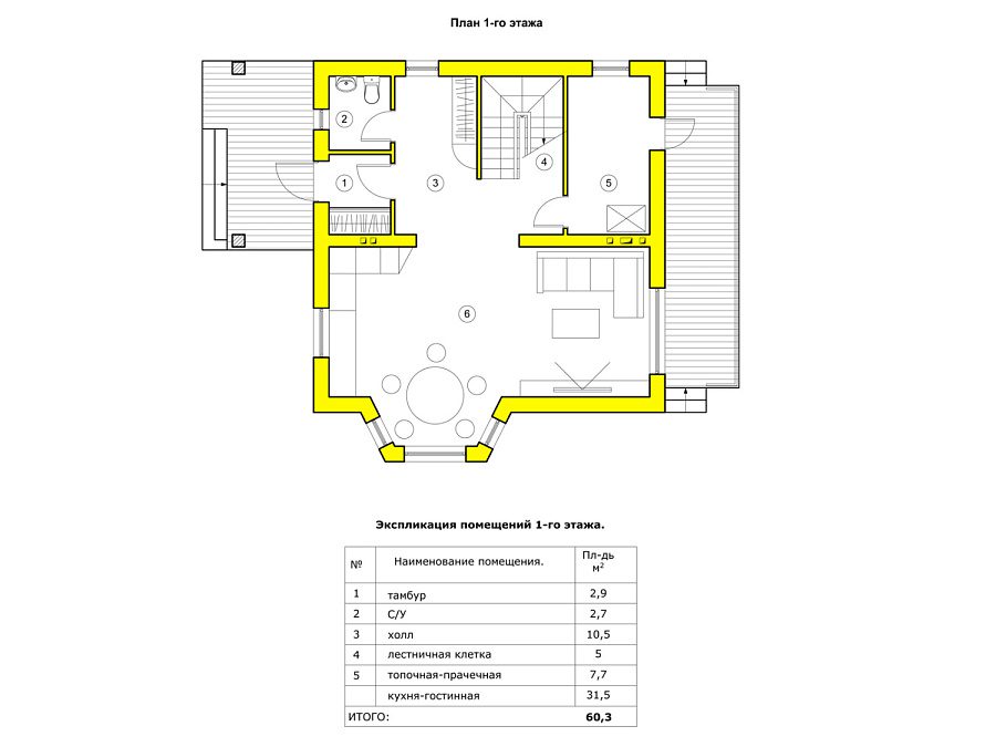
167.0 м²
1 / 3
🏠
167.0 м²
🛏
3 спален
🚿
2 санузл.
🧱
Газобетонный блок
Похожие проекты
Похожие по цене
Похожие по площади
Дом по проекту «ЗС 139-17» - Золотое Сечение
3 спальн. · 2 санузл.
от 20 875 000 ₽
→
Резиденция в современном стиле «Асорда»
2 спальн. · 3 санузл. · 2 этаж
от 20 868 000 ₽
→
Проект D-254-1K
3 этаж
от 20 860 800 ₽
→
Проект двухэтажного дома "Метафора" из бруса
5 спальн. · 2 этаж
от 12 599 113 ₽
→
Проект одноэтажного каркасного дома "Корделия2"
3 спальн. · 2 этаж
от 12 523 083 ₽
→
Дом по проекту «ЗС 139-17» - Золотое Сечение
3 спальн. · 2 санузл.
от 20 875 000 ₽
→
На сайт застройщика