Перейти к контенту
Подбор и сравнение проектов домов от застройщиков Московской области
Подборщик домов
Калькулятор сметы
Калькулятор площади
Форум
Блог
Главная
›
Каталог проектов
›
Дом по проекту «Штутгарт» - Золотое Сечение
Дом по проекту «Штутгарт» - Золотое Сечение
Застройщик: Золотое Сечение
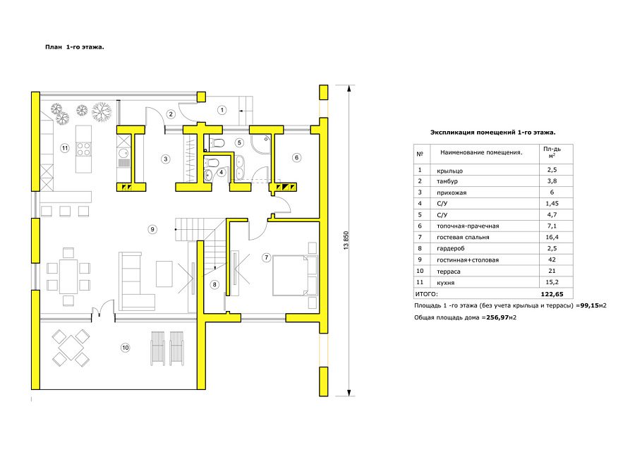
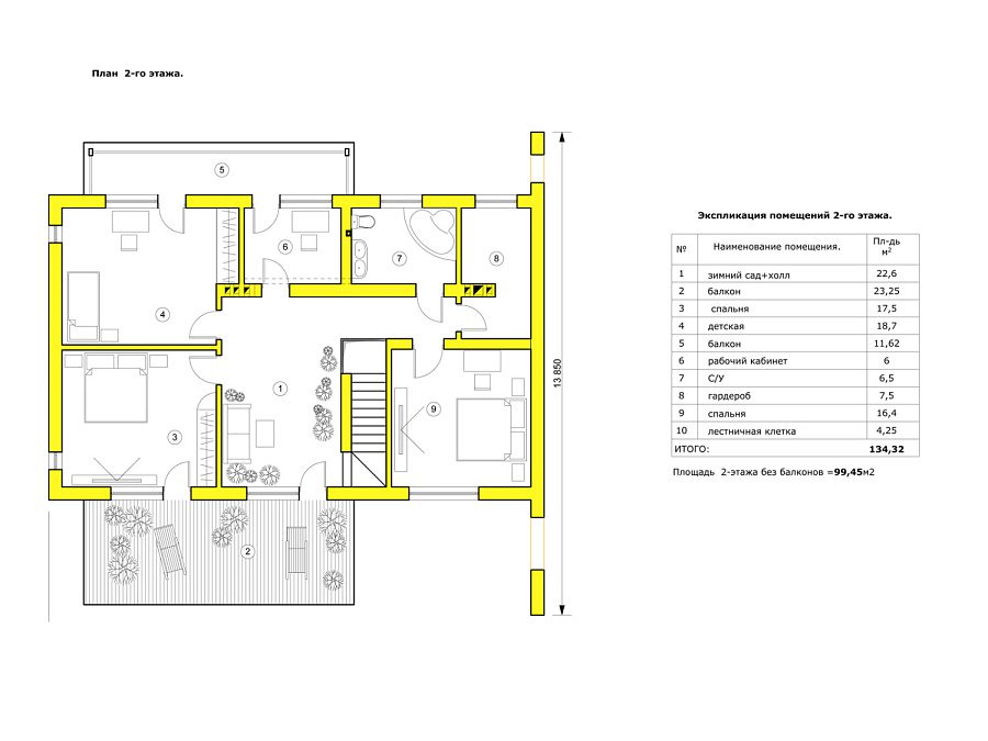
257.0 м²
1 / 3
🏠
257.0 м²
🛏
4 спален
🚿
3 санузл.
🧱
Газобетонный блок
Похожие проекты
Похожие по цене
Похожие по площади
Дом по проекту «ЗС 9-16» - Золотое Сечение
3 спальн. · 3 санузл.
от 32 125 000 ₽
→
Проект W-392-1K
2 этаж
от 32 135 800 ₽
→
Проект A-123-1D
2 этаж
от 32 100 000 ₽
→
Дом по проекту «ЗС 9-16» - Золотое Сечение
3 спальн. · 3 санузл.
от 32 125 000 ₽
→
Проект К-223 10 на 13, площадью 257 за 8 596 500 руб
5 спальн. · 2 этаж
от 8 596 500 ₽
→
Проект К-223 10 на 13, площадью 257 за 8 596 500 руб
5 спальн. · 2 этаж
от 7 196 000 ₽
→
На сайт застройщика