Перейти к контенту
Подбор и сравнение проектов домов от застройщиков Московской области
Подборщик домов
Калькулятор сметы
Калькулятор площади
Форум
Блог
Главная
›
Каталог проектов
›
Дом по проекту «Эрфурт» - Золотое Сечение
Дом по проекту «Эрфурт» - Золотое Сечение
Застройщик: Золотое Сечение
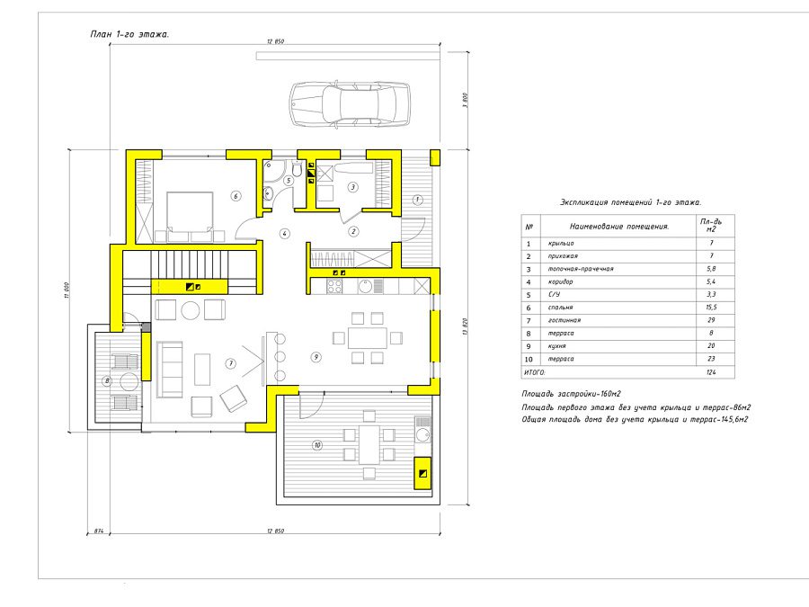
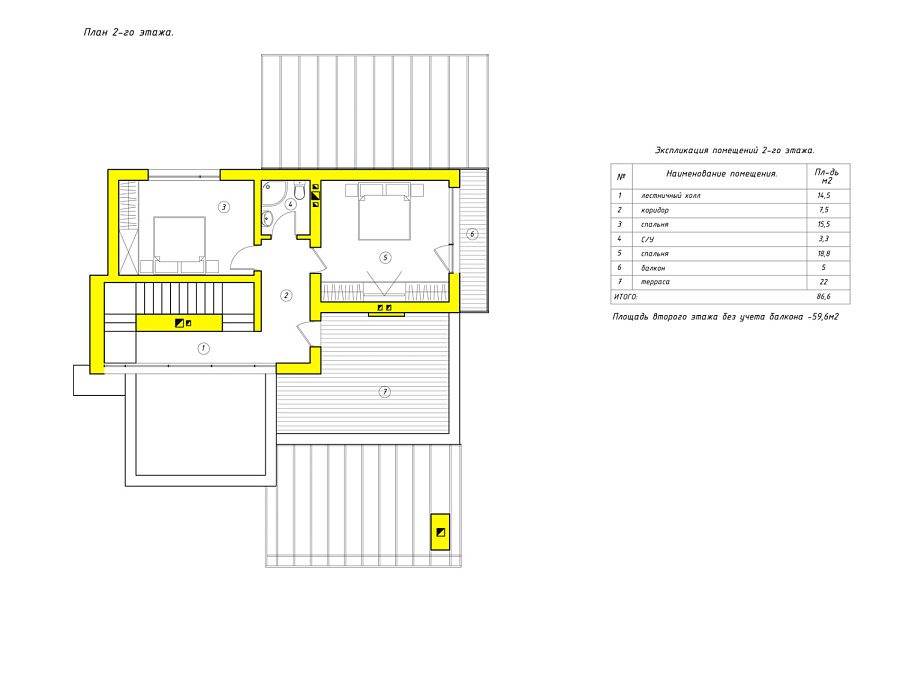
210.0 м²
1 / 3
🏠
210.0 м²
🛏
3 спален
🚿
2 санузл.
🧱
Газобетонный блок
Похожие проекты
Похожие по цене
Похожие по площади
Проект A-175-1D
2 санузл. · 2 этаж
от 26 250 000 ₽
→
Проект дома B-375-1P
2 этаж
от 26 257 000 ₽
→
Проект A-320-1K
3 этаж
от 26 240 000 ₽
→
Проект одноэтажного коттеджа "Благородный" из газобетона
4 спальн. · 2 этаж
от 11 310 000 ₽
→
Проект одноэтажного коттеджа "Пава" из газобетона
4 спальн. · 2 этаж
от 12 653 000 ₽
→
Дом из газобетона Проект ГБ-215
3 спальн. · 2 санузл. · 2 этаж
от 9 344 000 ₽
→
На сайт застройщика