Перейти к контенту
Подбор и сравнение проектов домов от застройщиков Московской области
Подборщик домов
Калькулятор сметы
Калькулятор площади
Форум
Блог
Главная
›
Каталог проектов
›
Дом по проекту «Эссен» - Золотое Сечение
Дом по проекту «Эссен» - Золотое Сечение
Застройщик: Золотое Сечение
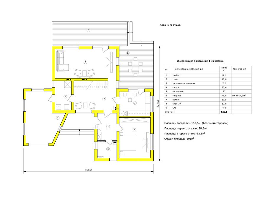
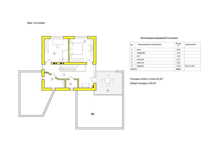
191.0 м²
1 / 3
🏠
191.0 м²
🛏
3 спален
🚿
2 санузл.
🧱
Газобетонный блок
Похожие проекты
Похожие по цене
Похожие по площади
Дом по проекту «ЗС 34-16-2» - Золотое Сечение
3 спальн. · 2 санузл.
от 23 875 000 ₽
→
Дом по проекту «ЗС 639-20» - Золотое Сечение
5 спальн. · 2 санузл.
от 23 875 000 ₽
→
Одноэтажный коттедж «Медфорд» с большой террасой
3 спальн. · 4 санузл. · 1 этаж
от 23 892 000 ₽
→
Дом Покровское 3 из газобетона: заказать в Москве по низкой цене
2 этаж
от 10 280 000 ₽
→
Дом Покровское 3 из кирпича: заказать в Москве по низкой цене
2 этаж
от 10 280 000 ₽
→
Проект двухэтажного каркасного дома Тетрис XXXL под ключ от компании БАКО
4 спальн. · 2 санузл. · 2 этаж
от 9 022 400 ₽
→
На сайт застройщика