Перейти к контенту
Подбор и сравнение проектов домов от застройщиков Московской области
Подборщик домов
Калькулятор сметы
Калькулятор площади
Форум
Блог
Главная
›
Каталог проектов
›
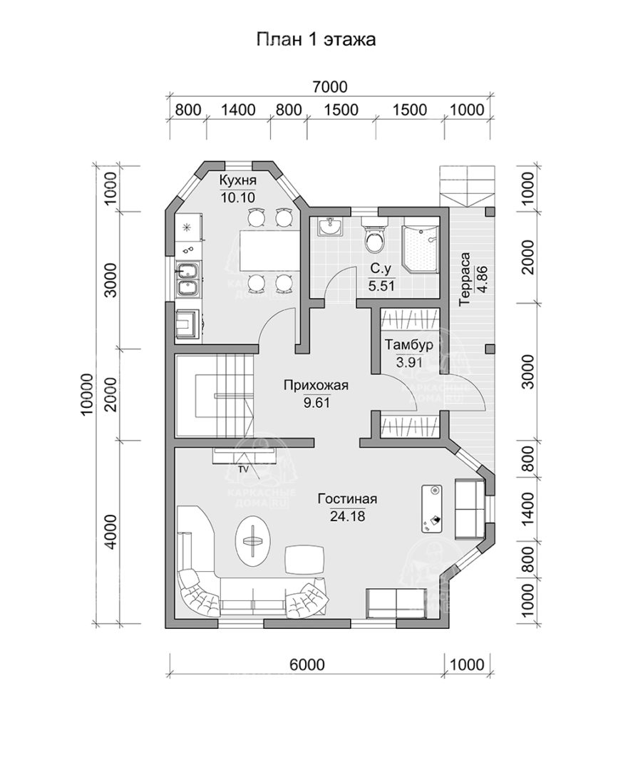
Каркасный дом 10x7 Проект "Янтарь"
Каркасный дом 10x7 Проект "Янтарь"
Застройщик: Каркасные дома RU
119.32 м²
1 / 3
🏠
119.32 м²
🛏
3 спален
🚿
1 санузл.
📐
2 этаж
🧱
Каркас
Похожие проекты
Похожие по цене
Похожие по площади
Проект Y-143-1S
2 этаж
от 2 813 160 ₽
→
Проект каркасного дома КП-48
1 этаж
от 2 820 000 ₽
→
Каркасный дом 8x8 Проект "Гранат"
1 санузл. · 2 этаж
от 2 823 000 ₽
→
Проект U-120-1P
1 этаж
от 8 353 800 ₽
→
Проект каркасного дома КП-812
2 спальн. · 1 этаж
от 7 600 000 ₽
→
Норд М 3
5 спальн. · 2 санузл. · 2 этаж
от 4 522 000 ₽
→
На сайт застройщика