Перейти к контенту
Подбор и сравнение проектов домов от застройщиков Московской области
Подборщик домов
Калькулятор сметы
Калькулятор площади
Форум
Блог
Главная
›
Каталог проектов
›
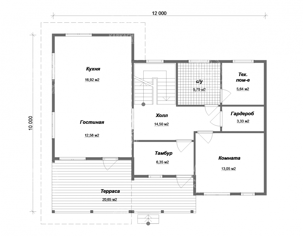
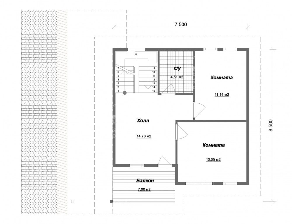
Каркасный дом 12x10 Проект "Эльбаит"
Каркасный дом 12x10 Проект "Эльбаит"
Застройщик: Каркасные дома RU
157.0 м²
1 / 3
🏠
157.0 м²
🚿
1 санузл.
📐
2 этаж
🧱
Каркас
Похожие проекты
Похожие по цене
Похожие по площади
Каркасный дом 11x12 Проект "Кунцит"
3 спальн. · 1 санузл. · 1 этаж
от 3 158 000 ₽
→
Проект G-160-1S
2 этаж
от 3 155 743 ₽
→
Дом «Захаров» 6х11 м
2 спальн. · 1 этаж
от 3 160 000 ₽
→
Проект двухэтажного дома "Уголок-М4" из бруса
4 спальн. · 2 этаж
от 14 800 669 ₽
→
Дом по проекту «ЗС 148-23» - Золотое Сечение
3 спальн. · 2 санузл.
от 19 625 000 ₽
→
Дом по проекту «ЗС 740-20» - Золотое Сечение
3 спальн. · 2 санузл.
от 19 625 000 ₽
→
На сайт застройщика