Перейти к контенту
Подбор и сравнение проектов домов от застройщиков Московской области
Подборщик домов
Калькулятор сметы
Калькулятор площади
Форум
Блог
Главная
›
Каталог проектов
›
Каркасный дом 12x8 Проект "Топаз"
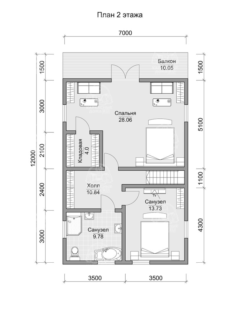
Каркасный дом 12x8 Проект "Топаз"
Застройщик: Каркасные дома RU
180.0 м²
1 / 3
🏠
180.0 м²
🛏
3 спален
🚿
1 санузл.
🧱
Каркас
Похожие проекты
Похожие по цене
Похожие по площади
Проект каркасного дома КП-50
1 этаж
от 3 300 000 ₽
→
Проект каркасного дома КП-63
1 этаж
от 3 300 000 ₽
→
ПД - 150-2 - Строительство домов из Каркаса, СИП, Бруса под ключ
3 спальн. · 2 санузл. · 2 этаж
от 3 300 000 ₽
→
Дом Горки 2 из газобетона: заказать в Москве по низкой цене
4 спальн. · 2 санузл. · 2 этаж
от 9 690 000 ₽
→
Дом Горки 2 из кирпича: заказать в Москве по низкой цене
4 спальн. · 2 санузл. · 2 этаж
от 9 690 000 ₽
→
Проект DOMFIX DUO - двухэтажный дом из газобетона
4 спальн. · 2 этаж
от 9 500 000 ₽
→
На сайт застройщика