Перейти к контенту
Подбор и сравнение проектов домов от застройщиков Московской области
Подборщик домов
Калькулятор сметы
Калькулятор площади
Форум
Блог
Главная
›
Каталог проектов
›
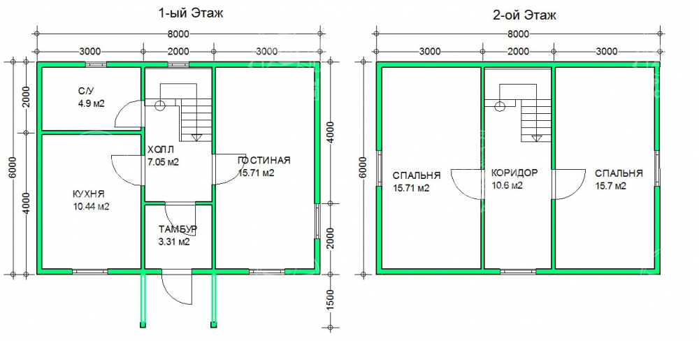
Каркасный дом 7.5x8 Проект "Гагат"
Каркасный дом 7.5x8 Проект "Гагат"
Застройщик: Каркасные дома RU
99.0 м²
1 / 2
🏠
99.0 м²
🛏
2 спален
🚿
1 санузл.
📐
2 этаж
🧱
Каркас
Похожие проекты
Похожие по цене
Похожие по площади
Проект M-120-1S
2 этаж
от 2 356 120 ₽
→
Каркасный дом 9x7 Проект "Туркенит"
3 спальн. · 1 санузл. · 2 этаж
от 2 372 000 ₽
→
Каркасный дом 7.5x9 Проект "Халцедон"
3 спальн. · 1 санузл. · 2 этаж
от 2 380 000 ₽
→
Проект двухэтажного каркасного дома "Диш"
3 спальн. · 2 этаж
от 7 269 456 ₽
→
Проект двухэтажного каркасного дома "Швец"
3 спальн. · 2 этаж
от 7 539 203 ₽
→
Проект одноэтажного каркасного дома "Зена"
4 спальн. · 2 этаж
от 7 440 906 ₽
→
На сайт застройщика