Перейти к контенту
Подбор и сравнение проектов домов от застройщиков Московской области
Подборщик домов
Калькулятор сметы
Калькулятор площади
Форум
Блог
Главная
›
Каталог проектов
›
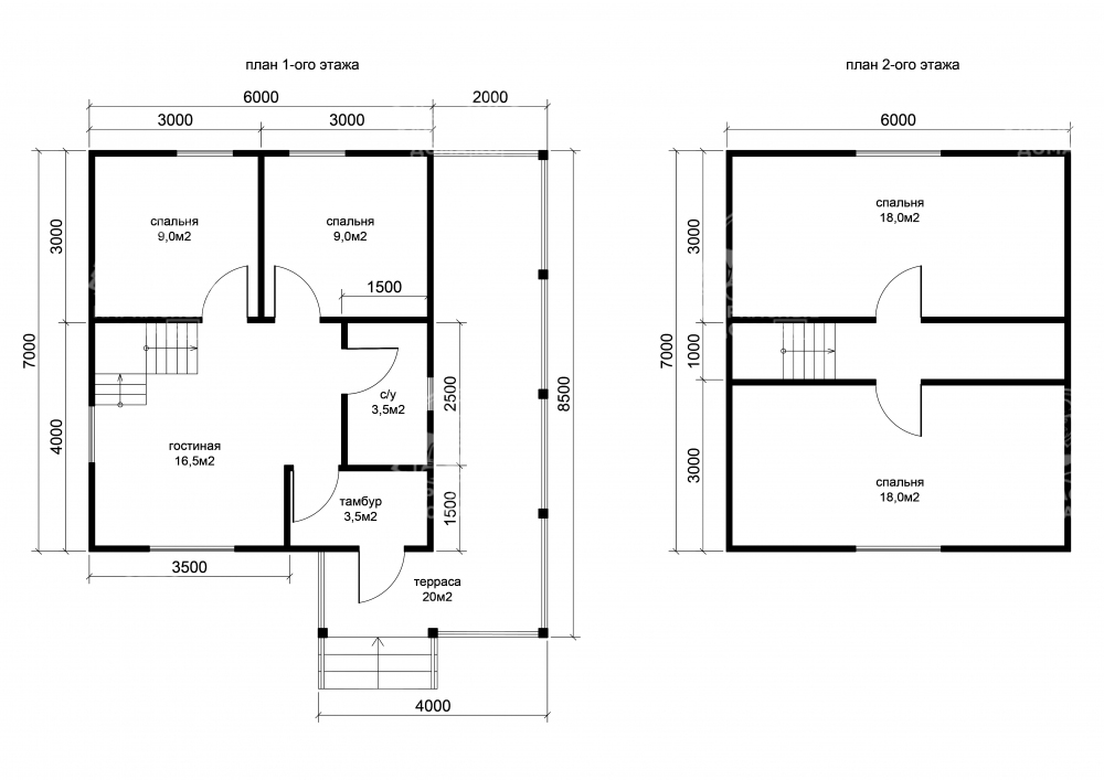
Каркасный дом 7x6 Проект "Титанит"
Каркасный дом 7x6 Проект "Титанит"
Застройщик: Каркасные дома RU
84.0 м²
1 / 2
🏠
84.0 м²
🛏
4 спален
🚿
1 санузл.
📐
2 этаж
🧱
Каркас
Похожие проекты
Похожие по цене
Похожие по площади
Строительство каркасного дома 7х7 "Паули" под ключ
2 спальн. · 1 санузл. · 1 этаж
от 2 516 000 ₽
→
Проект дома Имение-3
2 этаж
от 2 517 679 ₽
→
Дом «Владиславов» 6х10 м
2 спальн. · 1 этаж
от 2 510 000 ₽
→
Каркасная баня «КБ-45
от 3 495 000 ₽
→
Каркасный дом "Баркас 84 м² " 2 этажа — г. Балашиха, мкр. Купавна, Московская область
2 этаж
от 2 160 000 ₽
→
Проект К-8 10 на 4, площадью 84 за 2 778 000 руб
3 спальн. · 2 этаж
от 2 778 000 ₽
→
На сайт застройщика