Перейти к контенту
Подбор и сравнение проектов домов от застройщиков Московской области
Подборщик домов
Калькулятор сметы
Калькулятор площади
Форум
Блог
Главная
›
Каталог проектов
›
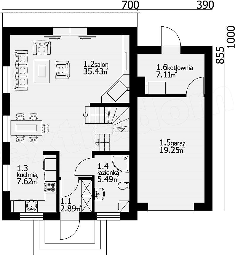
Проект К-122 10 на 7, площадью 140 за 4 672 500 руб
Проект К-122 10 на 7, площадью 140 за 4 672 500 руб
Застройщик: КаркасСтрой
140.0 м²
1 / 3
🏠
140.0 м²
🛏
4 спален
📐
2 этаж
🧱
Каркас
Похожие проекты
Похожие по цене
Похожие по площади
Проект К-118 10 на 8, площадью 154 за 5 178 000 руб
3 спальн. · 2 этаж
от 4 312 000 ₽
→
Проект К-44 9 на 8, площадью 154 за 5 076 000 руб
4 спальн. · 2 этаж
от 4 312 000 ₽
→
Каркасный дом 10x11 Проект "Гошенит"
1 санузл. · 2 этаж
от 4 308 000 ₽
→
Проект одноэтажного дома "Золотой ключик-3" из бруса
5 спальн. · 2 этаж
от 10 821 755 ₽
→
Проект одноэтажного дома "Максима II" из бруса
5 спальн. · 2 этаж
от 10 591 022 ₽
→
Строительство каркасного дома 15х12 "Айрис" под ключ
5 спальн. · 2 санузл. · 1 этаж
от 6 577 000 ₽
→
На сайт застройщика