Перейти к контенту
Подбор и сравнение проектов домов от застройщиков Московской области
Подборщик домов
Калькулятор сметы
Калькулятор площади
Форум
Блог
Главная
›
Каталог проектов
›
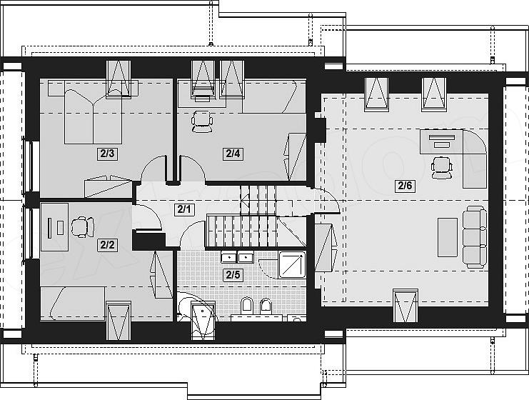
Проект К-123 8 на 12, площадью 199 за 6 597 000 руб
Проект К-123 8 на 12, площадью 199 за 6 597 000 руб
Застройщик: КаркасСтрой
199.0 м²
1 / 3
🏠
199.0 м²
🛏
4 спален
📐
2 этаж
🧱
Каркас
Похожие проекты
Похожие по цене
Похожие по площади
Проект дома Боярский
2 этаж
от 5 570 000 ₽
→
Каркасный дом С-152 КР «Горизонт»
2 спальн. · 1 санузл. · 2 этаж
от 5 569 000 ₽
→
Мой Дом от компании Я Мой Дом
2 спальн. · 1 санузл. · 1 этаж
от 5 583 000 ₽
→
Проект одноэтажного каркасного дома "Тефида"
4 спальн. · 2 этаж
от 14 364 346 ₽
→
Проект К-123 8 на 12, площадью 199 за 6 597 000 руб
4 спальн. · 2 этаж
от 6 597 000 ₽
→
Каркасный дом 12.9x10.4 Проект "Азурит"
2 спальн. · 1 санузл. · 2 этаж
от 4 422 000 ₽
→
На сайт застройщика