Перейти к контенту
Подбор и сравнение проектов домов от застройщиков Московской области
Подборщик домов
Калькулятор сметы
Калькулятор площади
Форум
Блог
Главная
›
Каталог проектов
›
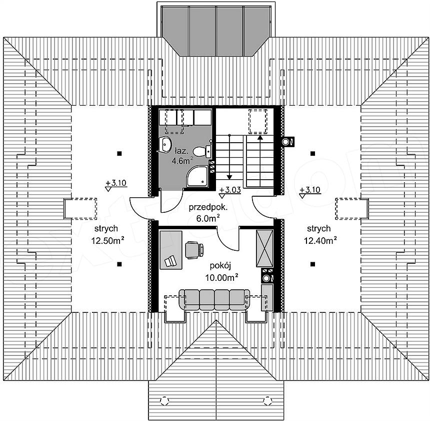
Проект К-166 15 на 13, площадью 384 за 12 854 250 руб
Проект К-166 15 на 13, площадью 384 за 12 854 250 руб
Застройщик: КаркасСтрой
384.0 м²
1 / 3
🏠
384.0 м²
🛏
4 спален
📐
2 этаж
🧱
Каркас
Похожие проекты
Похожие по цене
Похожие по площади
Проект дома из керамоблоков 11х9 ТКБ-130: цена 6172000 руб.
4 спальн. · 2 санузл. · 2 этаж
от 10 748 000 ₽
→
Проект V-153-1P
3 этаж
от 10 745 000 ₽
→
Проект одноэтажного дома "Пыжик-М2" из бруса
5 спальн. · 2 этаж
от 10 759 518 ₽
→
Проект К-166 15 на 13, площадью 384 за 12 854 250 руб
4 спальн. · 2 этаж
от 12 854 250 ₽
→
Дом из газобетонных блоков С-384 ГБ «Балу»
4 спальн. · 4 санузл. · 4 этаж
от 16 096 000 ₽
→
Дом из керамических блоков С-384 КЕ «Балу»
4 спальн. · 4 санузл. · 4 этаж
от 16 096 000 ₽
→
На сайт застройщика