Перейти к контенту
Подбор и сравнение проектов домов от застройщиков Московской области
Подборщик домов
Калькулятор сметы
Калькулятор площади
Форум
Блог
Главная
›
Каталог проектов
›
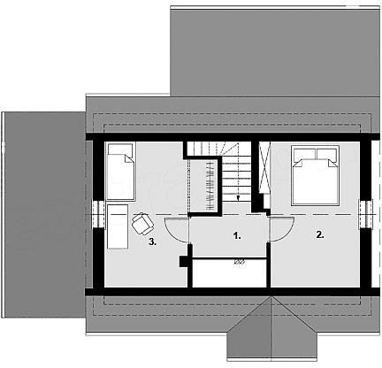
Проект К-17 12 на 12, площадью 294 за 9 774 000 руб
Проект К-17 12 на 12, площадью 294 за 9 774 000 руб
Застройщик: КаркасСтрой
294.0 м²
1 / 3
🏠
294.0 м²
🛏
4 спален
📐
2 этаж
🧱
Каркас
Похожие проекты
Похожие по цене
Похожие по площади
Дом из газобетонных блоков С-195 ГБ «Краса»
3 спальн. · 2 санузл. · 2 этаж
от 8 233 000 ₽
→
Дом из керамических блоков С-195 КЕ «Краса»
3 спальн. · 2 санузл. · 2 этаж
от 8 233 000 ₽
→
Проект дома из керамоблоков 13х11 ТКБ-117: цена 6645000 руб.
3 спальн. · 1 санузл. · 1 этаж
от 8 235 000 ₽
→
Дом по проекту «ЗС 276-18» - Золотое Сечение
4 спальн. · 5 санузл.
от 36 750 000 ₽
→
Проект К-17 12 на 12, площадью 294 за 9 774 000 руб
4 спальн. · 2 этаж
от 9 774 000 ₽
→
Проект A-294-1D
2 этаж
от 44 100 000 ₽
→
На сайт застройщика