Перейти к контенту
Подбор и сравнение проектов домов от застройщиков Московской области
Подборщик домов
Калькулятор сметы
Калькулятор площади
Форум
Блог
Главная
›
Каталог проектов
›
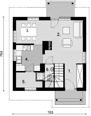
Проект К-22 8 на 8, площадью 117 за 3 975 000 руб
Проект К-22 8 на 8, площадью 117 за 3 975 000 руб
Застройщик: КаркасСтрой
117.0 м²
1 / 3
🏠
117.0 м²
🛏
3 спален
📐
2 этаж
🧱
Каркас
Похожие проекты
Похожие по цене
Похожие по площади
Проект К-9 9 на 6, площадью 117 за 3 847 500 руб
3 спальн. · 2 этаж
от 3 931 200 ₽
→
Проект дома «Сосновый бор» | ЭкоТех
3 спальн. · 2 санузл. · 2 этаж
от 3 933 000 ₽
→
Каркасный дом 13x10.7 Проект "Актинолит"
4 спальн. · 1 санузл. · 2 этаж
от 3 929 000 ₽
→
Проект одноэтажного дома "Лесной" из бруса
2 спальн. · 2 этаж
от 9 202 104 ₽
→
Проект одноэтажного дома "Рубин" из бруса
4 спальн. · 2 этаж
от 9 446 951 ₽
→
Проект К-22 8 на 8, площадью 117 за 3 975 000 руб
3 спальн. · 2 этаж
от 3 975 000 ₽
→
На сайт застройщика