Перейти к контенту
Подбор и сравнение проектов домов от застройщиков Московской области
Подборщик домов
Калькулятор сметы
Калькулятор площади
Форум
Блог
Главная
›
Каталог проектов
›
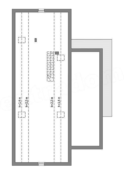
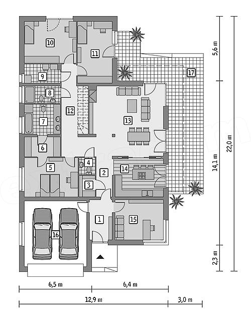
Проект К-222 22 на 13, площадью 284 за 11 314 500 руб
Проект К-222 22 на 13, площадью 284 за 11 314 500 руб
Застройщик: КаркасСтрой
284.0 м²
1 / 3
🏠
284.0 м²
🛏
4 спален
📐
1 этаж
🧱
Каркас
Похожие проекты
Похожие по цене
Похожие по площади
Проект каркасного дома с мансардой Шале L под ключ от компании БАКО
4 спальн. · 2 санузл. · 2 этаж
от 7 950 100 ₽
→
Проект каркасного дома КП-142
1 этаж
от 7 950 000 ₽
→
Проект A-114-1P
2 этаж
от 7 949 200 ₽
→
Проект К-222 22 на 13, площадью 284 за 11 314 500 руб
4 спальн. · 1 этаж
от 11 314 500 ₽
→
Дом из газобетонных блоков С-284 ГБ «Лайт»
2 спальн. · 2 санузл. · 2 этаж
от 12 208 000 ₽
→
Дом из керамических блоков С-284 КЕ «Лайт»
2 спальн. · 2 санузл. · 2 этаж
от 12 208 000 ₽
→
На сайт застройщика