Перейти к контенту
Подбор и сравнение проектов домов от застройщиков Московской области
Подборщик домов
Калькулятор сметы
Калькулятор площади
Форум
Блог
Главная
›
Каталог проектов
›
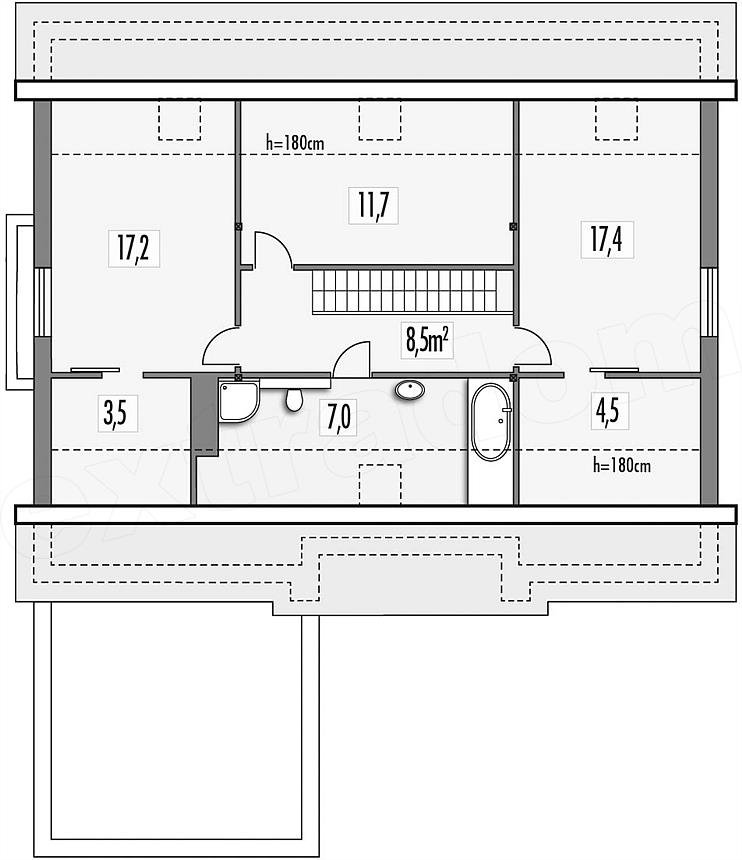
Проект К-232 17 на 10, площадью 338 за 11 293 500 руб
Проект К-232 17 на 10, площадью 338 за 11 293 500 руб
Застройщик: КаркасСтрой
338.0 м²
1 / 3
🏠
338.0 м²
🛏
7 спален
📐
2 этаж
🧱
Каркас
Похожие проекты
Похожие по цене
Похожие по площади
Дом 5 спален 2 санузла № 381
2 этаж
от 9 460 900 ₽
→
Проект дома №381
2 этаж
от 9 460 900 ₽
→
Проект одноэтажного дома "Солнечный" из бруса
5 спальн. · 2 этаж
от 9 458 035 ₽
→
Проект К-232 17 на 10, площадью 338 за 11 293 500 руб
7 спальн. · 2 этаж
от 11 293 500 ₽
→
Дом из газобетонных блоков С-338 ГБ «Достижение»
5 спальн. · 3 санузл. · 2 этаж
от 15 045 000 ₽
→
Дом из керамических блоков С-338 КЕ «Достижение»
5 спальн. · 3 санузл. · 2 этаж
от 15 045 000 ₽
→
На сайт застройщика