Перейти к контенту
Подбор и сравнение проектов домов от застройщиков Московской области
Подборщик домов
Калькулятор сметы
Калькулятор площади
Форум
Блог
Главная
›
Каталог проектов
›
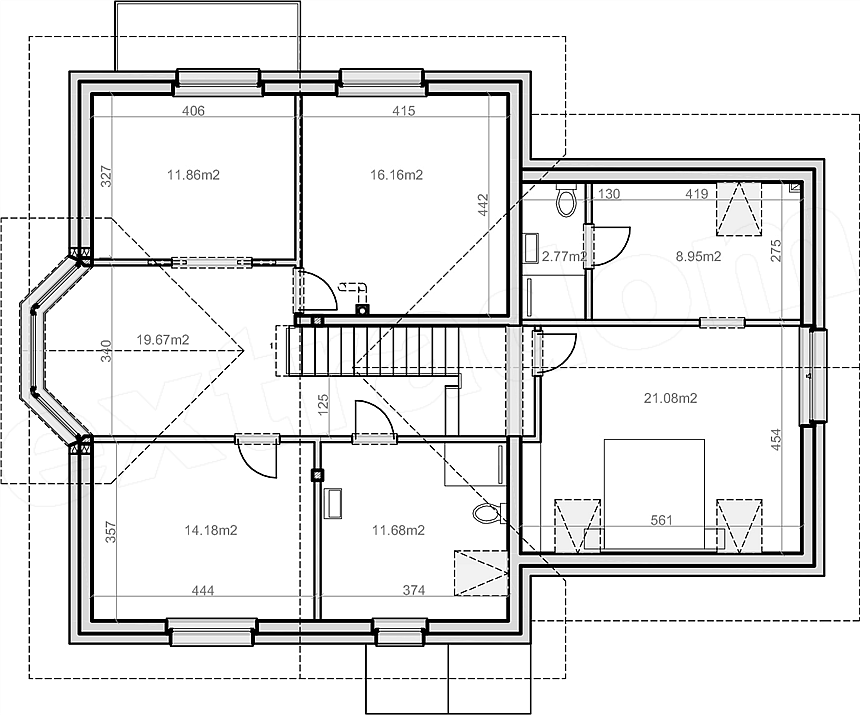
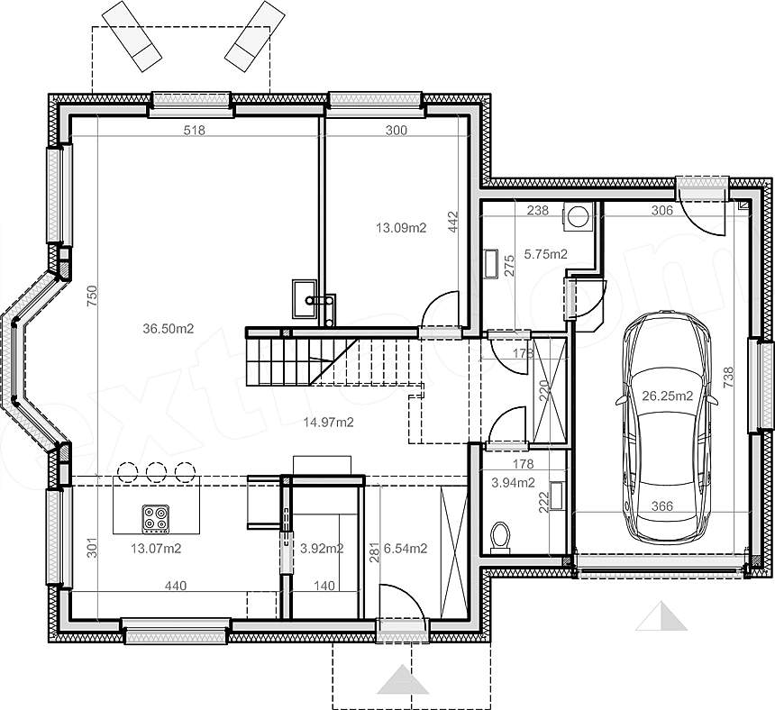
Проект К-233 11 на 12, площадью 246 за 8 325 000 руб
Проект К-233 11 на 12, площадью 246 за 8 325 000 руб
Застройщик: КаркасСтрой
246.0 м²
1 / 3
🏠
246.0 м²
🛏
5 спален
📐
2 этаж
🧱
Каркас
Похожие проекты
Похожие по цене
Похожие по площади
Проект К-151 12 на 10, площадью 246 за 8 172 000 руб
4 спальн. · 2 этаж
от 6 888 000 ₽
→
Проект К-58 11 на 11, площадью 246 за 8 184 750 руб
3 спальн. · 2 этаж
от 6 888 000 ₽
→
Проект N-084-1K
2 этаж
от 6 888 000 ₽
→
Проект одноэтажного каркасного дома "Ио"
3 спальн. · 2 этаж
от 17 603 805 ₽
→
Дом 3 спальни с террасой №373
2 этаж
от 17 768 300 ₽
→
Проект двухэтажный №22079 (373)
2 этаж
от 17 488 300 ₽
→
На сайт застройщика