Перейти к контенту
Подбор и сравнение проектов домов от застройщиков Московской области
Подборщик домов
Калькулятор сметы
Калькулятор площади
Форум
Блог
Главная
›
Каталог проектов
›
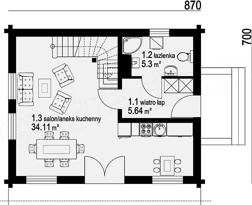
Проект К-26 7 на 9, площадью 122 за 4 097 250 руб
Проект К-26 7 на 9, площадью 122 за 4 097 250 руб
Застройщик: КаркасСтрой
122.0 м²
1 / 3
🏠
122.0 м²
🛏
3 спален
📐
2 этаж
🧱
Каркас
Похожие проекты
Похожие по цене
Похожие по площади
Проект К-129 15 на 8, площадью 122 за 4 824 000 руб
3 спальн. · 1 этаж
от 3 757 600 ₽
→
Проект К-31 9 на 7, площадью 122 за 4 097 250 руб
3 спальн. · 2 этаж
от 3 757 600 ₽
→
Барн 9
3 спальн. · 1 санузл. · 1 этаж
от 3 756 000 ₽
→
СК-1
2 санузл. · 1 этаж
от 7 990 000 ₽
→
Дом из газобетона Проект ГБ-214
3 спальн. · 2 санузл. · 1 этаж
от 4 279 000 ₽
→
Проект К-129 15 на 8, площадью 122 за 4 824 000 руб
3 спальн. · 1 этаж
от 4 824 000 ₽
→
На сайт застройщика