Перейти к контенту
Подбор и сравнение проектов домов от застройщиков Московской области
Подборщик домов
Калькулятор сметы
Калькулятор площади
Форум
Блог
Главная
›
Каталог проектов
›
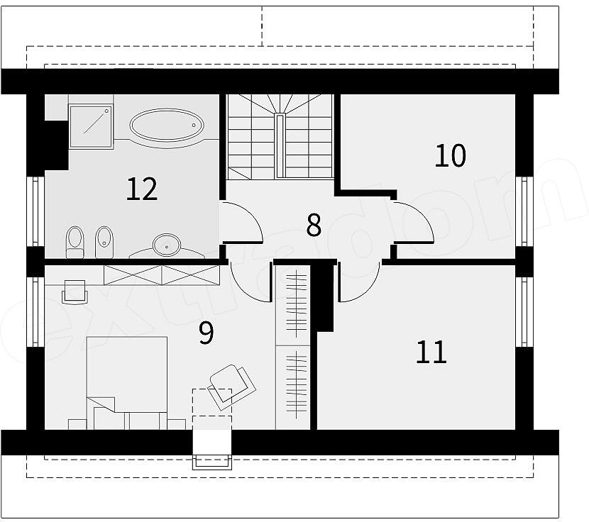
Проект К-61 8 на 8, площадью 128 за 4 272 000 руб
Проект К-61 8 на 8, площадью 128 за 4 272 000 руб
Застройщик: КаркасСтрой
128.0 м²
1 / 3
🏠
128.0 м²
🛏
3 спален
📐
2 этаж
🧱
Каркас
Похожие проекты
Похожие по цене
Похожие по площади
Проект К-23 8 на 8, площадью 128 за 4 272 000 руб
3 спальн. · 2 этаж
от 3 942 400 ₽
→
Проект К-55 8 на 8, площадью 128 за 4 272 000 руб
3 спальн. · 2 этаж
от 3 942 400 ₽
→
Проект К-60 8 на 8, площадью 128 за 4 272 000 руб
3 спальн. · 2 этаж
от 3 942 400 ₽
→
Проект двухэтажного дома "Уголок 9х10" из бруса
2 этаж
от 7 865 125 ₽
→
Проект одноэтажного дома "Красная Шапочка" из бруса
4 спальн. · 2 этаж
от 10 782 259 ₽
→
Каркасный дом «Сертолово
от 6 840 000 ₽
→
На сайт застройщика