Перейти к контенту
Подбор и сравнение проектов домов от застройщиков Московской области
Подборщик домов
Калькулятор сметы
Калькулятор площади
Форум
Блог
Главная
›
Каталог проектов
›
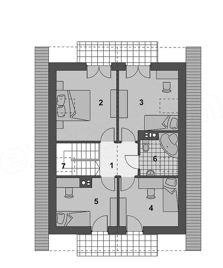
Проект К-65 8 на 10, площадью 164 за 5 448 000 руб
Проект К-65 8 на 10, площадью 164 за 5 448 000 руб
Застройщик: КаркасСтрой
164.0 м²
1 / 3
🏠
164.0 м²
🛏
4 спален
📐
2 этаж
🧱
Каркас
Похожие проекты
Похожие по цене
Похожие по площади
Проект К-56 10 на 7, площадью 121 за 4 591 500 руб
4 спальн. · 2 этаж
от 4 591 500 ₽
→
Проект каркасного дома КП-55
1 этаж
от 4 600 000 ₽
→
Проект I-233-1S
3 этаж
от 4 582 220 ₽
→
Проект одноэтажного дома "Таремское" из бруса
2 этаж
от 12 238 305 ₽
→
Проект одноэтажного дома "Черный жемчуг" из бруса
2 спальн. · 2 этаж
от 12 472 348 ₽
→
Дом 4 спальни с террасой №369
2 этаж
от 8 999 605 ₽
→
На сайт застройщика