Перейти к контенту
Подбор и сравнение проектов домов от застройщиков Московской области
Подборщик домов
Калькулятор сметы
Калькулятор площади
Форум
Блог
Главная
›
Каталог проектов
›
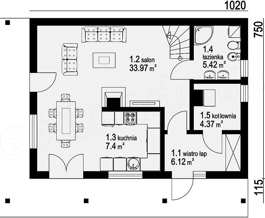
Проект К-67 10 на 8, площадью 153 за 5 151 000 руб
Проект К-67 10 на 8, площадью 153 за 5 151 000 руб
Застройщик: КаркасСтрой
153.0 м²
1 / 3
🏠
153.0 м²
🛏
3 спален
📐
2 этаж
🧱
Каркас
Похожие проекты
Похожие по цене
Похожие по площади
Проект дома Версаль
2 этаж
от 4 286 000 ₽
→
Проект К-14 15 на 7, площадью 109 за 4 281 750 руб
3 спальн. · 1 этаж
от 4 281 750 ₽
→
Проект К-79 9 на 7, площадью 129 за 4 286 250 руб
3 спальн. · 2 этаж
от 4 286 250 ₽
→
Проект двухэтажного дома "Уголок-М2" из бруса
4 спальн. · 2 этаж
от 13 040 589 ₽
→
Проект двухэтажного дома "Уголок-М3" из бруса
4 спальн. · 2 этаж
от 11 303 679 ₽
→
Двухэтажный дом 5 спален №353
2 этаж
от 10 207 555 ₽
→
На сайт застройщика